GB 1495汽车加速噪声标准限值加严情况研究
2021年4月8日 11:41《汽车加速行驶外噪声限值及测量方法(修订GB 1495-2002)》项目组通过分析“中国加速行驶车外噪声数据库”中的典型车型依据GB 1495新老标准的验证试验数据,获取了新老标准测量方法差异以及引起的测量结果差异,并对比新老限值水平差异,获得了GB 1495新标准限值在不同车型上的加严量,以及对这些车型的影响。
1 GB 1495新标准测量方法主要变化
GB 1495新标准的测量方法主要依据“中国工况”[5]及中国车型特征[6][7][8]修改采用了ISO 362-1:2007国际标准[9]。其测量方法与GB 1495-2002标准相比,在测量项目、测量车速、挡位选择上均有较大变动[10]。
1.1 轻型汽车
对于轻型汽车(M1,M2(GVM≤3500kg),N1类),GB 1495新标准测量方法主要有以下三个方面的变化[11]:
①GB 1495新标准对轻型汽车在继续采用全油门加速噪声测量考核动力系统噪声的基础上,引入了匀速噪声测量要求,加大对轮胎及行驶系统噪声的考核与控制,最终的噪声结果采用全油门加速噪声和匀速噪声测量结果的加权,获取和复现汽车在道路正常行驶加速度条件下的噪声值;
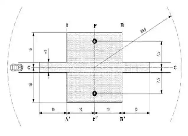
②为了更好的将声压级测量与“中国工况”的车速更好结合,如图1所示,GB 1495新标准的测量速度由GB 1495-2002标准汽车行驶到加速起始线(AA′线)的50km/h,变为了汽车参考点通过传声器位置时(PP′线)的车速为50km/h±1km/h;
③GB 1495新标准改变了GB 1495-2002标准对于轻型汽车固定采用2、3挡进行测量的方式,选取加速度最接近市区加速工况的挡位进行测量,以尽可能复现汽车在市区加速行驶时的常用挡位。
图1 测量场地及声级计的布置简图
1.2 重型汽车
对于重型汽车(M2(GVM>3500kg),M3,N2,N3类),GB 1495新标准测量方法主要有以下两个方面的变化[12]。
①GB 1495新标准根据重型汽车市区行驶的车速及转速特征,将噪声测量目标车速设定为35km/h,将M2、N2类汽车离开加速终端线(BB′)时的目标转速应设定为70%~74%最大净功率转速;M3、N3类汽车离开BB′线时的目标转速设定为85%~89%最大净功率转速;
②GB 1495新标准改变了GB 1495-2002标准采用总挡位数除以2或3的挡位开始进行噪声测量的挡位选择方式,根据重型汽车在市区加速行驶时的目标车速和转速条件,判定出汽车在目标车速和转速条件下的常用挡位,用于噪声测量。
1.3 测量方法对测量结果的影响
《汽车加速行驶外噪声限值及测量方法(修订GB 1495-2002)》项目组依据GB 1495新标准及GB 1495-2002标准测量方法开展了203辆各型样车的比对试验,其中M1类汽车120辆,M2类汽车13辆,M3类汽车14辆,N1类汽车10辆,N2类汽车12辆,N3类汽车34辆,准确掌握测量方法改变对各型汽车的测量结果影响。
采用GB 1495新标准测量方法时:GVM≤2500kg的M1类汽车测量结果平均值较GB 1495-2002标准减小了0.7dB(A);GVM>2500kg的M1类汽车减小了2.4dB(A);GVM≤3500kg的M2类汽车减小了2.1dB(A);GVM>3500kg的M2类汽车减小了0.7dB(A);M3类汽车减小了0.5dB(A);N1类汽车减小了2.2dB(A),N2类汽车减小了0.8dB(A),N3类汽车增加了0.7dB(A)[13]。
2 GB 1495新老标准限值状况
2.1 GB 1495新标准限值表
GB 1495新标准限值分为第三阶段和第四阶段,对汽车的分类主要依据汽车最大总质量的大小,设定了不同的限值,汽车的最大总质量越大,则对应的限值越大,并在附加条款中,对特殊车型给予了1dB(A)-4 dB(A)的限值宽松,详见表1。
表1 GB 1495新标准汽车加速行驶车外噪声型式检验限值表
注:对特殊车型的限值宽松说明,详见以下a~g 附加条款(可叠加):
a GVM≤2500kg的M1类车型:如属于越野车(G类),或采用中置(后置)发动机且后轴参与驱动时,其限值增加1dB(A);其中,采用中置发动机仅后轴驱动的车型如果其驾驶员座椅“R”点离地高度≥800mm,其限值再增加1dB(A)。
b GVM≤2500kg的M1类车型:如PMR>120 kW/t,其限值增加1dB(A);其中,如PMR>160 kW/t,其限值再增加2dB(A)。
c GVM>2500kg的M1类车型:如属于越野车(G类),或其驾驶员座椅“R”点离地高度≥850mm,其限值增加1dB(A)。
d GVM>2500kg的M1类车型:如PMR>160 kW/t,其限值增加2dB(A)。
e M2,M3,N2,N3类车型:如试验时采用多于两轴行驶,其限值增加1dB(A);如试验时采用多轴驱动,其限值再增加1dB(A)。
f N1类车型:如属于越野车(G类),或试验时后轴参与驱动,其限值增加1dB(A)。
g GVM>17 000kg的N3类车型:如属于越野车(G类),其限值增加1dB(A)。
2.2 GB 1495-2002限值表
GB 1495-2002标准,主要依据轻型汽车最大总质量和重型汽车发动机最大额定功率的大小,设定了不同限值,对特殊车型给予了1dB(A)-4 dB(A)的限值宽松,详见表2。
表2 GB 1495-2002标准汽车加速行驶车外噪声限值表
说明:
a)M1,M2(GVM≤3.5t)和N1类汽车装用直喷式柴油机时,其限值增加1dB(A)。
b)对于越野汽车,其GVM>2t时:如果P<150 kw,其限值增加1dB(A);如果P≥150 kW,其限值增加2dB(A)。
c)M1类汽车,若其变速器前进挡多于四个,P>140 kW,P/GVM之比大于75 kW/t,并且用第三挡测试时其尾端出线的速度大于61km/h,则其阻值增加1dB(A)。
3 GB 1495新标准限值加严情况
3.1 GB 1495新标准限值的加严量计算方法
新老标准的测量方法与限值分类方式均存在差异,从表1、表2的限值表,不能直接获得GB 1495新标准相比GB 1495-2002标准的限值加严量。需依据GB 1495新标准限值表的车型分类方式,将GB 1495-2002标准限值表的车型分类与之对应[14],再将各车型依据GB 1495-2002标准的限值减除依据GB 1495新标准测量方法差异带来的测量结果减小量(或加上测量方法差异带来的测量结果增加量),获得GB 1495-2002标准相对GB 1495新标准限值的等效限值水平。
以普通轿车为例,GB 1495-2002标准限值为74.0,如本文2.1所示,在减除依据GB 1495新标准测量方法带来的测量结果均值减小量0.7dB(A),GB 1495-2002标准的限值等效水平为73.3dB(A),比GB 1495新标准第三阶段限值高1.3dB(A),比第四阶段限值高2.3dB(A)。GB 1495新标准第三阶段限值比GB 1495-2002标准第二阶段限值的加严量为1.3dB(A),第四阶段限值比GB 1495-2002第二阶段限值的加严量为2.3dB(A)。
3.2 GB 1495新标准限值的加严状况
如表3所示,根据“中国加速行驶车外噪声数据库”,本标准第三阶段限值与GB 1495-2002标准第二阶段限值相比,轻型汽车(M1,M2(GVM≤3500kg),N1类)限值整体加严了1.0dB(A)左右,重型汽车(M2(GVM>3500kg),M3,N2,N3类)限值整体加严了2.5 dB(A)左右[15]。第四阶段限值在第三阶段限值的基础上均再加严了1.0dB(A)。
* GB 1495-2002第二阶段限值为减除测量方法改变影响后,与GB 1495新标准等效的限值
《汽车加速行驶外噪声限值及测量方法(修订GB 1495-2002)》项目组依据“中国加速行驶车外噪声数据库”的现有203辆样车试验数据测算,第三阶段限值实施以后,轻型汽车预计的淘汰率为15%左右,其中对于公众反映较为强烈的大功率跑车、越野车等车型的淘汰率为20-30%;重型汽车,尤其是在市区经常行驶的M3类大客车及公交车,N2、N3类物流车、自卸车、渣土车、垃圾车等类别汽车,淘汰率为20-30%。第四阶段限值预计的淘汰率与第三阶段的淘汰率水平相当。
4 结论
①GB 1495新标准改变了GB 1495-2002现有的测量方法,以期更好的复现汽车在市区正常行驶时的真实噪声水平;
②多数汽车类型依据GB 1495新标准获得的测量结果都比GB 1495-2002标准偏小,但N3类汽车的测量结果则偏大;
③GB 1495新标准限值与GB 1495-2002标准第二阶段限值相比,加严了噪声限值,其中针对重型汽车的限值加严量较大,达到了2.5dB(A)左右。
表3 GB 1495新标准与GB 1495-2002标准第二阶段限值等效对比
专家推荐
周正:
文章通过比对依据新标准及现行标准的测量结果差异获取GB 1495-2002标准相对GB 1495新标准的等效限值水平,并简要分析了限值加严情况及对各型汽车的影响。
论文作者思路清晰,论述过程严谨,列举数据详尽,能综合运用基础知识,全面合理的分析问题,全文结构合理,观点明显,对论文资料有充分、全面的认识。在论证过程中能教好的运用相关资料进行论证与案例论证,论文语言流畅,图表清晰。
参考文献:
[1]中国WTO/TBT-SPS通报咨询网.中华人民共和国国家标准《汽车加速行驶车外噪声限值及测量方法(中国第三、第四阶段)》.http://www.tbtsps.gov.cn,2018年11月7日.
[2]国家环境保护总局,国家质量监督检验检疫总局.GB 1495-2002 汽车加速行驶车外噪声限值及测量方法[S].北京:中国环境科学出版社,2002.
[3]欧洲经济委员会.ECE Regulation No.51 Revision 3-Uniform provisions concerning the approval of motor vehicles having at least four wheels with regard to their sound emissions[S].2016.
[4]Louis-Ferdinand PARDO,Heinz STEVEN.MONITORING PROCEDURE IN THE VEHICLE NOISE REGULATION[R].UN ECE WP29(GRB)第53次会议.2011.
[5]李孟良,张建伟,张富兴等.中国城市乘用车实际行驶工况的研究[J].汽车工程,2006,06:554-557+529.
[6]谢东明,郭勇,徐军辉等.对于商用车加速噪声试验新方法中发动机转速的处理意见[J].汽车技术,2013,08:46-50.
[7]冯屹,高明秋,谢东明等.装备自动变速器的乘用车加速噪声试验新方法修订建议[J].汽车技术,2012,10:39-43.
[8]谢东明,冯屹,高吉强等.装备手动变速器的商用车加速噪声试验方法修订建议[J].汽车技术,2012,09:40-44.
[9]国际标准化组织.ISO 362-1:2007 Measurement of noise emitted by accelerating road vehicles—Engineering method—Part 1:M and N categories[S].2007.
[10]邱彬,谢东明,靳旗等.ISO 362-1:2007与ISO362:1998标准的差异分析及测试结果对比[J].汽车工程,2010,32(04):363-368.
[11]谢东明,邱彬,刘建军等.ISO 362-1:2007在M1类车辆试验中的应用[J].汽车技术,2009,11:52-57.
[12]谢东明,邱彬,郭勇等.ISO 362-1:2007在商用车试验中的应用[J].汽车技术,2011,01:41-45.
[13]欧洲经济委员会,(China)The sub-categories suggestion from China[R].UN ECE WP29(GRB)第57次会议,2013.
[14]苑林,谢东明,郭瑞玲等.基于加速行驶车外噪声限值的乘用车亚分类研究[J].汽车技术,2015,06:56-61.
[15]环境保护部.汽车加速行驶车外噪声限值及测量方法(中国第三、四阶段)(编制说明)[R].环境保护部网站,2017.
一码不扫,
可以扫天下?
工程师必备
- 项目客服
- 培训客服
- 平台客服
TOP




















