规范图集大全——一个为建筑工程人,提供施工技术学习、交流的平台,10万工程人订阅的微信大号。点击标题下蓝字“规范图集大全”关注,我们为您提供有价值的工程阅读。
来源:豆丁施工
脚手架是为建筑施工而搭设的上料、堆料与施工作业用的临时结构架。更重要的是为我们提供安全的行走平台,主要承担从主体结构到后期装修装饰整个施工全过程的围护架。
外架采用¢48×3.5 钢管搭设,排距不小于 800 ㎜,纵距不大于 1500 ㎜(根据方案确定),步距为1800mm。
根据使用模板材料的不同,立杆与建筑物之间的距离为:一般模板:剪力墙处:内立杆距墙 200 ㎜以内,有阳台处内立杆距阳台板 250 ㎜;外立杆距墙 1100㎜;大模板、钢模:内立杆距墙 400 ㎜以内。
(1)、钢管、扣件、安全网必须有产品质量合格证并在使用前按照相关规定抽样送检,检测合格后方可投入使用。
(2)、外脚手架搭设必须编制专项施工方案,符合现场施工实际,经技术发展处审批后方可实施。
(3)、外脚手架钢管必须进行防锈处理除锈后刷一道防锈漆和两道面漆,面漆颜色为桔黄色 (Y100),剪刀撑采用黄黑双色油漆,间距 300-400mm。
(4)、外脚手架每一步架体外立杆内侧挂 180mm 高的踢脚板,黑黄双色油漆分段斜刷,其间距为 200mm 一段,斜向倾角为 45°。
(5)、钢管进场应做好验收工作,着重对外观、外径、壁厚等进行检查,钢管表面应平直光滑,钢管应无严重锈蚀、裂缝、孔洞、结疤、弯曲、压痕。
(6)、扣件应采用可锻铸铁和钢板压制制作,必须具有产品质量合格证、生产许可证和专业检测单位测试报告。
(8)、工程中应采用阻燃密目安全网,绿色,安全网目密度不应低于 2000 目/100mm2,安全网必须保持干净整洁。
(9)、连墙件及其预埋件均使用与架体同种规格钢管制作,采用直角扣件连接。
脚手架必须配合施工进度搭设,一次搭设高度不应超过相邻连墙件以上两步(即搭设二个步距的自由高度后,做好连墙件的拉结后方可继续架体的搭设)。脚手架的搭设顺序为:水平扫脚杆(1)→扫地小横杆(2)→第一步、二步大横杆、小横杆→钢管斜撑(3)→三、四步大小横杆(4)→连墙拉结件及顶杆(5)→接立杆(6)→剪刀撑(7)→绑扎架桥(8)→循环搭设。
1)、搭设前按方案进行预排,做到立杆间距均匀。各杆件纵横间距满足方案要求。立杆选用 3.0m、4.5m、6.0m 钢管纵向排列布置,立杆接长采用对接扣件,大于 500mm 的建筑物凹档处须加设立杆。


为了使立杆间距均匀,排脚时先计算整个建筑物整体长度加上脚手架两边的离墙间距 L1,用L1 除于方案要求的立杆间距 L2,得到间距内跨数(如不能整除去除小数取整值),然后以总长 L1 除以取整后跨数,得实际立杆间距 L2,然后按照立杆的根数和间距进行布置。
2)、立杆上的对接扣件应交错布置:两根相邻立杆的接头不应设置在同步内,同步内隔一根立杆的两个相隔接头在高度方向错开的距离不宜小于 500mm;各接头中心至主接点的距离不大于步距的 1/3;主立杆要求垂直度偏差不大于全高的 1/400。

3)、脚手架转角部位的立杆为四根,水平杆在外脚手架转角处必须交圈(形成井字形结构);其余小横杆位于大横杆上,以大横杆做小横杆的支座,用直角扣件连接牢固。

4)、落地式脚手架必须设置纵、横向扫地杆,纵向扫地杆宜采用直角扣件固定在距底座上皮不大于20mm 的立杆上,横向扫地杆亦采用直角扣件固定在紧靠纵向扫地杆下方的立杆上。当脚手架基础不在同一高度时必须将高处的纵向扫地杆向低处延长两跨与立杆固定,高低差不应大于 1m,靠边坡上方的立杆轴线到边坡的距离不小于 500mm。

1)、纵向水平杆设置在立杆的内侧,其长度不宜小于 3 跨;纵向水平杆(大横杆)必须选用两种不同长度的钢管交错布置,并满相邻两接头的水平距离大于 500 ㎜,且不应在同步同跨内。内隔一根立杆的两个接头在水平方向错开的距离不宜小于 500㎜。

2)、主节点处必须设置一根横向水平,用直角扣件连接固定且严禁拆除。主节点处两个直角扣件的中心距不应大于 150mm,小横杆伸出外立杆控制在 100 ㎜左右。靠墙一端外伸长度为杆件端头距建筑物保持 50mm 的距离。作业层的小横杆应根据脚手板的需要等间距设置,最大间距不应大于纵距的 1/2。

剪刀撑应在外侧立面上由底至顶连续设置,并随立杆、纵横水平杆等同步搭设,每组跨越立杆根数在 4~6 根之间,宽度不小于 4 跨,与地面的倾角应在 45°~60°之间。杆件接长采用搭接, 搭接长度不小于 1000mm,用不少于三个转角扣件连接,杆件端头伸出扣件盖板边缘长度不应小于100mm,与相邻的立杆用活动扣件连接。

连墙件均应采用刚性连墙件与建筑物可靠连接,连墙件设置数量、间距以及构造应满足规范和方案要求,并保证可承受拉力和压力。
1)、连墙杆按二步三跨设置。在建筑物边梁上预埋φ4.8×3.5mm 的钢管,钢管用转角扣件与连墙杆扣接。

2)、脚手架的连墙件设在靠近主节点处,偏离主节点的距离不应大于 300mm。在门窗洞口处采用加设两道横杆通过扣件与连墙杆连接

4)、连墙件应从底层第一步纵向水平杆处,转角部位第一根立杆开始设置,,连墙件采用菱形、方形、矩形布置。)

5)、连墙件必须与脚手架内外立杆连接,严禁向上翘起。

1)、脚手架基础应进行计算并根据地耐力(以楼面作为脚手架搭设基础的则应对楼面承载力进行验算)设计基础作法,在脚手架搭设基础时立杆下应纵向仰铺 12~16 号槽钢铺垫,当脚手架基础下有设备基础、管沟时,必须采取加固措施,在脚手架使用过程中不应开挖,否则必须采取加固措施。

2)、脚手架基础应考虑周边设有排水措施,脚手架底座底面标高应高于室外自然地坪 50mm,立杆基础外侧设置截面不小于 200×200mm 的排水沟,保证脚手架基础不积水。

1)、作业层脚手板必须层层满铺、铺稳,离开墙面120~150mm;脚手板可采用对接平铺和搭接两种方式, 脚手板端部的固定方式。

2)、使用钢筋网片、冲压钢脚手板时,脚手架在中间加设一根纵向水平杆,采用对接平铺,四角用不细于18# 铁丝双股并联绑扎牢固。

1)、脚手架外侧应采取护身栏和踢脚板结合的防护措施。作业层外侧设 1800mm 的护身栏杆,并在护身栏杆与脚手板高度 900mm 处加设一道栏杆以加强作业层外侧的防护,下端设一道180mm 高的踢脚板。踢脚板用 20mm 厚的竹胶板或多层板制作,落地脚手架从第二步开始挂设, 悬挑脚手架从第一步架开始挂设。

2)、外侧用密目网作全封闭。安全网应固定在外立杆的里侧,使用不细于 18#铁丝洞洞满扎, 在外架转角处增加立杆,可以使密目网张拉地更加顺直、严密。

3)、脚手架的内立杆距墙的近距不得大于 200mm(大模板、钢模、玻璃幕墙除外),如大于 200mm 的必须设置平整牢固的隔板。作业层脚手板与建筑物之间的空隙大于 150mm 时作全封闭,防止人员和物料坠落。脚手架第一步架和作业层立杆与结构之间的空隙采取硬隔离措施,从此处向上进行三步一隔离,立杆与结构之间的空隙进行相应的隔离。

4)、当脚手架搭设出现操作面断面时(如人货电梯通道旁),脚手板端头处必须设两道防护栏杆,高度为分别为 0.6m 和 1.2m,立挂密目网和安全警示牌。

5)、遇到楼层层高较大,步标高高出地面或楼面 2M 时应在外架内侧增加防护栏杆。


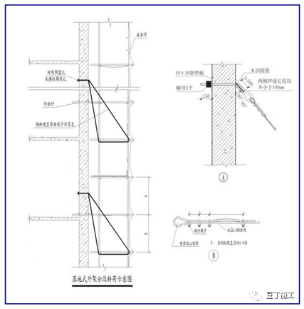
1)、脚手架搭设超过一定高度的时候必须采用加强措施,如采用双管立杆、分段卸荷、分段搭设等方法但必须有专门设计(根据施工方案进行实施)。
2)分段卸荷常采用下撑或上拉式,下撑可采用钢管或钢管搭设桁架,上拉则宜采用钢丝绳吊拉。相关构造可参考下图:

说明:钢丝绳吊环除图示方法以外,亦可采用结构预埋¢16 的圆钢制作(具体做法根据专项方案实施)。
3)、分段卸荷荷载的大小取决于卸荷绳的几何性能及其装配的预紧力,可以通过选择截面尺寸 、吊点位置以及调整索具螺旋扣等来调整卸荷的大小。一般在选择钢丝绳及索具螺旋时,按能承受卸荷层以上全部荷载来设计,在确定脚手架卸荷层及其位置时,按能承受卸荷层以上全部荷载的 1/3 来计算。
建筑物顶部脚手架要高于斜屋面的挑檐板不小于 1.8m,高于平屋面女儿墙不小于 l.5m,高出部分要设置两道防护栏杆,并挂设安全网。
1)、人行兼做材料运输的斜道高度不大于 6m 时采用一字型,高度大于 6m 时采用之字型。
2)、运输斜道宽度不得小于 1.5m,坡度为 1:6,人行斜道宽度不得小于 1m,坡度为 1:3.
3)、拐弯处设置平台,宽度不小于 1.5m,斜道两侧及平台外围设置 1.2m 和 0.6m 高的两道防护栏杆及 180mm 高的踢脚板,防护栏杆和踢脚板表面刷黄黑警示漆。
4)、斜道附着外脚手架或建筑物设置,各里面按要求设置剪刀撑,斜道外侧满挂密目安全网封闭。
5)、斜道的基础与外脚手架基础一致,斜道的连墙件按开口型脚手架要求设置。
6)、运输斜道铺设厚度不小于 40mm 的木板,否则通道钢管间距加密。人行斜道铺设 18mm 的木板。人行斜道可采用踏步式和斜道式搭设。当采用斜道式时须设置防滑条且固定牢固,防滑条厚度为
20~30mm,间距不大于 300mm.

2)、电梯井内架搭设高度超过 24 米必须分段悬挑进行卸荷。
3)、电梯井内架每层用木板封闭隔离严密,跟随施工进度进行实施。

1)、脚手架按三步一验收的原则进行验收(5.4m);
2)、验收人员包括项目经理、技术负责、安全员、搭设班组长及总监或总监代表;
3)、验收合格以后,在架体显眼处挂设验收合格牌方可投入使用
2)、拆除前全面检查脚手架的扣件连接、拉结件、支撑体系等是否符合构造要求;根据检查结果制定完善的拆除方案和安全防护措施;
5)、拆除作业应由上至下、逐层拆除,严禁上下同时作业。
6)、拉结件必须随脚手架逐层拆除,严禁先将拉结件整层或数层拆除后再拆除脚手架,分段拆除高差不应大于两步,如高差大于两步应增设连墙杆加固。
7)、分段拆除时,对不拆除的脚手架两端应按规定设置连墙杆和横向斜撑加固。
悬挑式外脚手架是指通过在建筑物外边缘布设悬挑梁,并通过悬挑梁将脚手架荷载全部或部分传递给建筑结构,架体通过拉结件与建筑物牢固拉结,用以满足施工需要的脚手架。相比落地架具有节省材料,搭拆方便,适应性强等特点,多用于小高层、高层建筑施工。
工程中应采用型钢作为悬挑梁,型钢宜采用工字钢,如采用槽钢,则应有相应的加强措施。
1)、工程中应采用型钢作为悬挑梁,型钢原则上采用 16 号以上的工字钢,悬挑梁锚固筋¢16# 以上的圆钢,严禁使用螺纹钢。
1)、挑梁采用 16#工字钢,在距离挑梁前端 100 ㎜处焊¢≥18 钢筋头,用于固定立杆 (防止立杆移位),焊接时不允许点焊,必须满焊,保证焊接质量,钢筋头高出“工”字钢 150 ㎜。

挑梁锚环制作,锚环必须采用一级≥¢16 圆钢,且水平段锚固长度不小于 350mm。

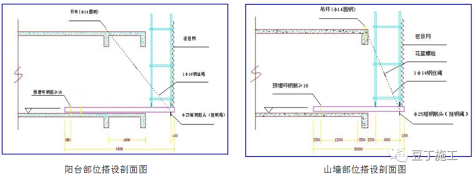
1)、悬挑梁的锚环严禁安装在悬挑结构上(如阳台部位)。
2)、在悬挑层将悬挑梁锚环预埋到梁板内,锚环处的钢筋应加密,然后浇筑梁板混凝土。待混凝土强度达到 10MPa 后,再进行悬挑梁安装,在混凝土强度达到 110MPa 后才能逐步施加脚手架荷载。
3)、悬挑梁落于结构上的锚固段应大于悬挑段的 1.5 倍(1:1.5),且两道锚固必须用木楔塞紧。

4)、每道悬挑梁均应加设斜拉钢丝绳。悬挑梁的锚环与钢丝绳吊环不得预埋在悬挑结构板上。锚环与吊环必须是圆钢制作,不得用螺纹钢代替。钢丝绳的绳卡不得少于 3 个,开口方向朝主绳,方向一致。

5)、悬挑脚手架最底层(第一步架)的正面和侧面必须采用木板进行硬性隔离防护,立杆内侧设置180mm 高踢脚板。

6)、放置悬挑梁时先放置建筑物两端转角部位的两根悬挑梁,固定好以后在悬挑梁的末端拉一条通线,再放置中间其余的工字钢,保证所有的悬挑工字钢在同一直线上,做到一条线,一头齐。悬挑梁锚环做法同上。
转角部位采用叠工字钢的做法,简单快捷,安全牢靠,节省工期。
1)、采用 14 号工字钢两根叠放在转角部位的悬挑梁上。

2)、工字钢交接部位用 18#圆钢制作U 型卡环固定。


(1)、用¢18 的圆钢制作高度为 38mm,宽度为 12mm 的U 型卡环;

卸料平台是楼层用于传递施工周转材料的操作平台。钢平台必须有足够的承载能力、刚度和稳定性, 在施工过程中要确保在各种荷载作用下不发生失稳、倒塌,并不能超过结构的容许强度。
1)、卸料平台分为钢管式落地卸料平台和悬挑钢平台两种
2)、卸料平台必须有专项设计方案,并有详细的计算书,报公司技术发展处审批后严格按方案进行实施。
3)、卸料平台严禁与外架连接,悬挑钢平台悬挑梁严禁搁置在外架上。
4)、平台板铺设严密,不留空隙,三周设两道护身栏杆(600mm/1200),并用木模板(或 3mm 铁板)硬封闭,护栏外侧可用密目安全网围护。
5)、在料台的显眼处必须挂设警示标识、限重牌和验收牌。
根据卸料平台的使用高度,堆载重量以及地基基础情况进行设计 。卸料平台的搭设高度、堆载荷载,落地式卸料平台的步距不、纵横立杆的间距必须严格按方案进行实施;三面均设置剪刀撑,随着架的搭设,每隔两步设置一道水平方向的剪刀撑,水平剪刀撑与建筑有可靠的连接;卸料平台与建筑物必须是刚性连接,并严格按照两步三跨设置。
在主体施工阶段应考虑落地式卸料平台的位置,将位置确定好了以后,再根据设计的卸料平台尺寸以及各杆件之间的相对位置,在主体阶段梁、顶板混凝土浇注之前预埋连墙件。
以及水平剪刀撑与建筑物的连接。
为保证架体基础稳定性,架体下方回填土要回填密实,架体基础以及四周 300 ㎜范围内必须硬化。
并在立杆下方垫 200 ㎜宽,仰铺 14~18#槽钢(或 50 ㎜厚木板)作为架体基座。

立杆选用 3~3.4m、4~4.2m、5.6~6m 三种规格的钢管纵向排列布置,立杆接长采用对接扣件。主立杆要求垂直度偏差不大于全高的 1/400。立杆上的对接口件应交错布置,两个相邻立柱的接头不得设置在同步同跨内,两相邻立柱接头在高度方向上错开的距离不宜于 500mm;各接头中心至主接点的距离不大于步距的 1/3。

横向扫地杆设在纵向扫地杆下面,并用直角扣件固定在立杆上。搭设水平杆时,应从二层以上每层的结构面向下排列,架体步距控制在 1500mm 范围内,必须保证架体的平台与作业面标高一致。横向水平杆在立杆外露 100 ㎜,设在距立杆 100mm 的范围内。纵横向扫地杆设在距基础以上 200mm 处的立杆上,

剪刀撑按立面图布置,每组跨越立根数在 4~6 根之间,与地面的倾角应在 45°~60°之间。杆件接长采用搭接,搭接长度不小于 1 米,并用不少于三个转向扣件连接。

根据预先设置的预埋件位置,将预埋件与合适的水平杆采用扣件连接起来。旁边增设抗滑扣件以抵抗风压。

当架体搭设到与作业层相平行的高度时,在该层满铺竹胶板,竹胶板下面设置方木,方木的间距不能大于 400mm,并且在沿方木垂直方向搭设间距不大于 400mm 水平杆。

平台外侧设 600mm 和 1200mm 高的两道防护栏杆,底部设置 180mm 的踢脚板,四周用密目安全网进行围蔽。

1)、卸料平台不得超重使用,不允许抛掷重物,使用前要作荷载试验。
2)、指定班组人员外任何人不得独立指挥拆、装、移位,不得擅自拆装卡具。
4)、吊料时不得在平台和围栏上部站立、指挥和操作。
3)钢管规格¢48×3.5 焊接钢管,材质符合 YB242-63 标准,无锈蚀、弯曲,无烂口,并刷防锈油漆,严禁钢管上打孔。
4)预埋锚环必须是Ⅰ级钢,预埋锚环直径不能低于 16mm,钢材复试合格。
1)、根据设计的卸料平台尺寸宽度、长度,以及挑梁在建筑物顶板锚固长度来设置锚环的位置。

2)根据建筑的结构以及层高设置钢丝绳的 拉环位置与形式,钢丝绳的吊环严禁用钢管代替。

1)、卸料平台加工场地要平整,这样焊接的卸料平台才能保证表面的平整度,挑梁与端部横梁平面均向外,以保美观。
2)、卸料平台主挑梁(16 号工字钢)与横梁(10 号槽钢)之间的连接采用焊接连接方法,焊接时横梁平面均向外,在横梁 10 槽钢开豁口插入工字钢挑翼缘内顶紧并采取双面满焊,焊缝高度不小于 6 ㎜。

3)、为了避免卸料平台在钢丝绳的拉力下向内滑移(筑物内),在工 16 工字钢挑梁与建筑物外墙(或边梁)相接触部位设置挡板,挡板采用高度为300mm的 10 槽钢,将 10 号槽钢焊在挑梁下方。

4)、在主挑梁(16 号工字钢)侧面沿翼缘高度方向上焊≧¢18mm 圆钢作为斜拉钢丝绳吊环,圆钢必须深入到 16 号工字钢底部与之焊接牢固。

5)、每根挑梁上焊接三个吊环,前面两个作为卸荷用,后面一个作为吊装时用。

6)、在卸料平台次梁 10 号槽钢)上铺 3mm 厚花纹钢板并焊接牢固。

7)、卸料平台两侧设置高度为 1200mm 防护栏杆,第一道距平台面 600mm,第二道距平台 1200mm。栏杆采用 48×3.5 钢管,将钢管焊在工 16 工字钢上作为护身护栏的立柱,横向的杆件与立柱的连接采用焊接连接。
再在护身护栏上固定 20mm 竹胶板,封闭两侧并在外侧刷黄黑警示漆。

8)、卸料平台门的设置:卸料平台的门设计成豁口形式,这样有利于堆放长钢管,起吊方便。

9)、卸料平台骨架在地面制作拼装好后,吊装到位进行安装。

10)、钢丝绳卡“U”型部分卡在绳尾,夹座压在主绳上(开口方向朝主绳),且每组卡接不得少于3 个绳卡,3 个绳卡之间的间距为钢丝绳直径的 6~8 倍,并在最后一道绳卡前留一个安全弯,用于检查绳卡的牢固度。

1)、悬挑钢转料平台必须由经过建筑登高架设培训、并取得特种作业上岗证的架子工从事安装、转移工作。
2)安装转移前必须由工程技术人员对作业人员进行书面及口头安全技术交底。
3)在安装转移区域必须设警戒线,由专人负责警戒,禁止任何非安拆人员进入安装、转移区域。
4)安装、转移人员在作业前必须认真检查个人安全防护用品(安全帽、安全带)是否齐全,工具袋是否完好。
5)安装时将所需或拆下的螺栓、绳卡装在工具袋内。拆除转移前要将平台上的杂物、料具清除干净,统一运到楼内堆放,不得随意搁置在转料平台上。
6)安装钢平台时,必须在斜拉钢丝绳卡环全部到位、花篮螺栓调整各钢丝绳松紧度均匀使钢平台前端略微翘起,经确认无误后,塔吊方可摘落钢丝绳。
7)转料平台不得与脚手架体有任何杆件连接,如悬挑梁碰到外架大横杆,也不得将平台钢梁搁置在脚手架大横杆上,必须将其拆除。
9)安装好的转料平台必须经过工长、技术负责人、安全员、安装人员负责人共同验收,合格后方可投入使用。
1、土建技术交流群(禁广告)!
2、【免费下载】免费工程资料下载库
3、985本规范图集+1000交底+18册安全质量图册领取!
4、全套监理规划/细则/旁站/报告/大纲/月报/领取
5、全套安全标准/图册/交底/标化视频/操作规程/应急预案/ABC题库/三级教育领取!
6、10个工程干货集,免费领资料
7、土建、安装全套识图视频教程
8、福利来了!16G101土建立体识图,你想要的都在这儿啦!
9、万达全套220个中建施工方案免费下载!