【分析】从变压器到配电箱!临时用电线路接法和配电箱配置标准图
2021年9月7日 14:02 浏览:5102
1、线路由外电变压器低压输出及中性点接地引入到总配电房

2、线路的黄、绿、红三相线接入到总配电箱的总隔离开关上(左图)


隔离开关必须选用分断时有明显可见分断点的开关(右图)
3、浅蓝色中性接地线接入到第一级漏电保护器上的接线端


注:该类刀闸已不允许使用,本文主要介绍线路布置走向,还请理解!
5、从第一级漏电保护器“N”出线端接引到工作零线接线端

6、从第一级总漏电保护器引出相线到多路分路隔离开关

二、总配电箱到分配电箱的接法:三路分三路为例
1、从总配电箱的分配电开关分别引出黄、绿、红(L1、L2、L3)三相线


总配电箱门与箱体间必须采用编织软铜线可靠连接作保护接零

2、线路的黄、绿、红三相线接入到二级分配电箱的总隔离开关上
淡蓝色N线接入到漏电保护器的N端上,通过漏保后接到工作零线端子板


4、从二级分配电箱的总隔离开关引出三相线到漏电保护器


PE线不能进入漏电保护器,因为线路末端漏电保护器动作会使前级漏电保护器跳闸造成大范围停电。
6、黄、绿、红三相线分别从分配电箱的分路隔离开关引出

7、分配电箱门与箱体间必须采用编织软铜线作保护连接

三、单相末级开关箱线路接法
1、引入线可选用任意一条相线(以红色线为例),接入到单相开关箱的隔离开关

2、将淡蓝色的N线也接入到单相开关箱的隔离开关 ,将黄绿双色的PE线接入到PE板接线端子上

3、从隔离开关的接线端引出红色相线和蓝色N线到漏电保护器的接线端子上

4、红色相线和蓝色N线从漏电保护器接线端引出,黄绿双色PE线从PE板的接线端子引出

四、三相末级开关箱线路接法
1、黄、绿、红三相线分别接入到三相开关箱的隔离开关。黄绿双色的PE线接入到PE板接线端子上 。从隔离开关的接线端引出黄、绿、红三相线到漏电保护器的接线端子上

2、黄、绿、红三相线从漏电保护器接线端引出 ,点这 .免费下载施工技术资料黄绿双色PE线从PE板的接线端子引出

五、末级开关箱设置要求
1、固定式末级开关箱的中心点与地面的垂直距离应为1.4~1.6m(下图)

2、移动式末级开关箱其中心与地面的垂直距离宜为0.8~1.6m(右图)



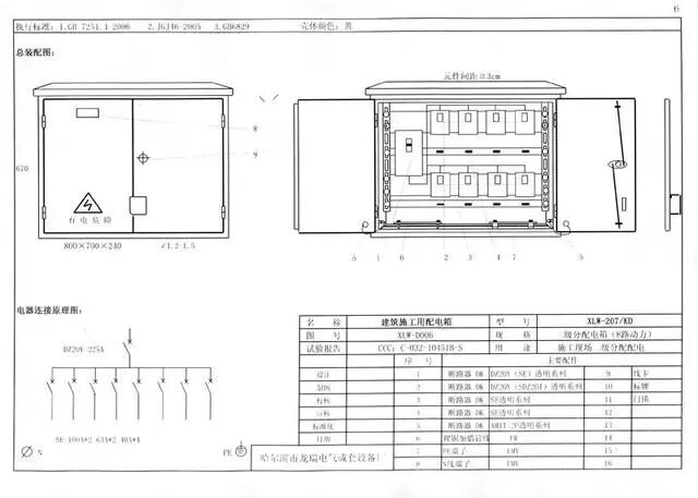
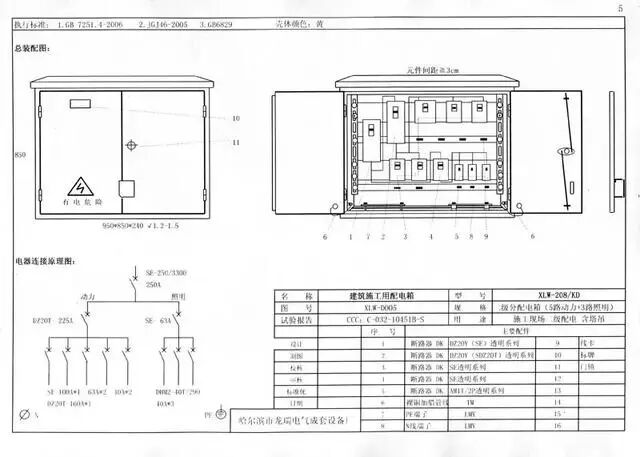
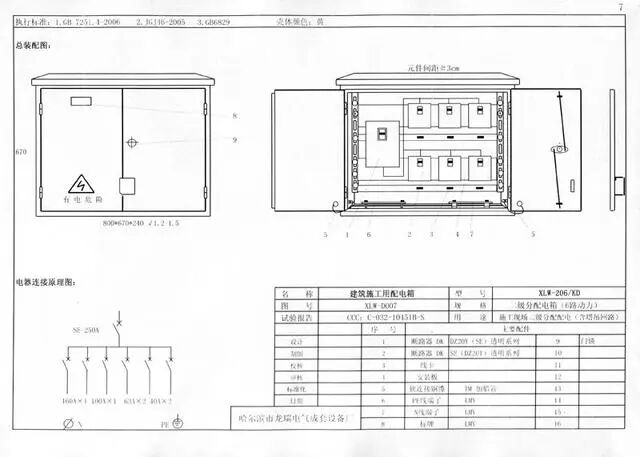
六、施工现场临时用电配电箱(柜) 标准化配置图集
该系列配电箱(柜)适用于施工现场及户外临时用电,应满足“三级配电、 二级漏电保护、一机一闸、一漏一箱”配电及保护的使用要求。配电箱(柜)、开关箱的材质选用、制作工艺、箱内电气元件的选择、配置应符合国家相关标准,以及建设部“十一五”推广应用技术的规定,产品应通过CCC认证。配电箱(柜)的壳体采用冷轧钢板制作,防雨、防尘、户外型,采用钢板厚度符合JGJ-2005标准,经久耐用。
(一)配电箱(柜)的生产制造应符合《低压成套开关设备和控制设备》第四部分GB7251.4对建筑工地用成套设备(ACS)的特殊要求及《施工现场临时用电安全技术规范》JGJ46-2005的标准要求。
(二)配电箱(柜)、开关箱安装使用应符合《施工现场临时用电安全技术规范》JGJ46-2005标准及《用电安全导则》GB/T13869标准化要求。
(三)配电箱(柜)、开关箱应分设N线、PE线端子板,进出线必须通过端子板做可靠连接。N线端子板必须与金属电器安装板绝缘;PE线端子板必须与金属电器安装板做电气连接。进出线中的N线必须通过N线端子板连接;PE线必须通过PE线端子板连接。PE线与端子板连接必须采用电气连接,电气连接点的数量应比箱体内回路数量多2个,1个为PE线进箱体的连接点,1个为重复接地的连接点。
(四)电器元件应选用符合GB/14048.2-2001、GB6829以及JGJ46-2005标准的产品,并符合建设部“十一五”推广应用技术要求。
内设400A-630A具有隔离功能的DZ20型透明塑壳断路器作为主开关,分路设置4-8路采用具有隔离功能的DZ20系列160A-250A透明塑壳断路器,配置DZ20L(DZ15L)透明漏电开关或LBM-1系列作为漏电保护装置,使之具有欠压、过载、短路、漏电、断相保护功能,同时配备电度表、电压表、电流表、两组电流互盛器。漏电保护装置的额定漏电动作电流与额定漏电动作时间的乘积不大于30mA.S。最好选用额定漏电动作电流75-150mA,额定漏电动作时间大于0.1S小于等于0.2S,其动作时间为延时动作型。






(一)含照明回路分配电箱 (动力回路与照明回路分路配电)
内设200A-250A具有隔离功能的DZ20系列透明塑壳断路器作为主开关(与总配电箱分路设置断路器相适应);采用DZ20或 KDM-1型透明塑壳断路器作为动力分路、照明分路控制开关;各配电回路采用DZ20或KDM-1透明塑壳断路器作为控制开关;PE线连线螺栓、N线接线螺栓根据实际需要配置。








内设KDM1或DZ20(160A以上 380V)系列透明塑壳断路器作为控制开关,配置DZ20L系列透明漏电断路器或LBM-1系列漏电断路器;PE线端子排为3个接线螺栓。




内设DZ20(20-40A、380V)或SE,KDMI系列透明塑壳断路器作为控制开关,配置DZ15LE(20-40A)或LBM1系列透明漏电断路器,PE线端子排为4个接线螺栓。



根据所控制设备额定容量选择控制开关及漏电断路器。控制开关为DZ20(SE或KDM1)系列透明塑壳断路器,漏电断路器为DZ15L系列透明系列漏电断路器;PE线接线螺栓为3个。


内设KDM1—T/2(20-40A)断路器,配置DZ15L—20-40/290漏电断路器,PE线螺栓为3个。


注:开关箱中漏电断路器必须选择额定漏电动作电流不大于30mA,额定漏电动作时间不大于0.1S,电流速断、电磁式电动机保用产品。
(一)配电柜正面的操作通道宽度,单列布置或双列背对背布置不小于1.5m,双列面对面布置不小于2m;
(二)配电柜后面的维护通道宽度,单列布置或双列面对面布置不小于0.8m,双列背对背布置不小于1.5m,个别地点有建筑物结构凸出的地方,则此点通道宽度可减少0.2m;
(一)固定式配电箱、开关箱箱体中心点与地面垂直距离1.4--1.6m。移动式箱体与地面垂直距离0.8—1.6m。配电箱、开关箱应装设在坚固、稳定的支架上。
(二)配电箱、开关箱在建筑物坠落半径或塔吊臂旋转半径内的必须做双层防护棚,并采取隔离措施。
来源:电力工程技术平台
技术邻APP
工程师必备