珍藏!16G101全系列深度揭秘!
2021年11月23日 11:48来源:微空、土木吧
如有侵权,请联系删除
正文如下:
总说明和制图规则部分
一、绪论
11G101自2011年9月1日实行,16G101自2016年9月1日实行,正好5年一个周期。
当初11G101的推出变化挺大的,因为2010年,《混凝土结构设计规范》(以下简称《混规》)、《建筑抗震设计规范》(以下简称《抗规》)和《高层建筑混凝土结构技术规程》(以下简称《高规》)进行了重大修订,因为G101是以规范为依据,所以,11G101相对于03G有很大变化,加之,11G101的体系也作了重大调整,进行了一些合并,从原6本图集压缩了3本图集。
那么,16G101相对于11G101有哪些变化呢?无重大变化,相似度约90%。但即使10%的差异也是需要研读。
平面表示法及平法制图规则不会有变化,规则有稳定性,不可能一直变来变去,但可以局部修正和完善。
其次,原规范依据没有变化,如果说有变化,仅《中国地震动参数区划图》(GB18306-2015)是新增的。
同时,16G101-1总说明3:“当依据的标准进行修订或有新的标准出版实施时,本图集与现行工程建设标准不符的内容、限制或淘汰的技术产品,视为无效。工程技术人员在参考使用时,应注意加以区分,并应对本图集相关内容进行复核后使用。”原图集无此说明,这条说明有多重含义,一是图集从属和依附于规范;二、凡图集与规范不符的以规范为准;三、当规范修订,图集不符部分视为无效;四,使用者不能教条地使用图集,要与规范对照复核后使用。
本次图集修订必要性不大。
首先是因为规范还没修订,图集的修订应与规范的修订保持同步。
其次是平法图集本身也没有重大理论发现和科研成果。不论是规范和图集都要保持相对的稳定性和延续性,不可频繁变更与升版。
复次,图集标准体系没有作出重大调整,笔者在点评03G101和 11G101时曾建议G101整合成一本。图集一分为三,每本图集都有相同内容,如一些通用性说明和规定,可以合而为一,避免重复,减少容量。同时合而为一便于随带、翻阅和查询,如竖向构件柱墙的上部构造做法要到11G101-1上去查,柱墙在基础内构造要到11G101-3上去查,把一种构件进行人为的割裂。钢筋工程是一个系统,拆分三个图集反而是影响整体性,不符合平法的哲学思想。
二、总则说明的变化
变化一、总则说明5.“本图集适用于抗震设防烈度为6~9度地区的现浇混凝土框架、剪力墙、框架-剪力墙和部分框支剪力墙等主体结构施工图的设计,以及各类结构中的现浇混凝土板(包括有梁楼盖和无梁楼盖)、地下室结构部分现浇混凝土墙体、柱、梁、板结构施工图的设计。”本图集也不适用用砌体结构。标准构造详图取消了非抗震构件构造。而原11G101适用于非抗震和抗震。因为《中国地震动参数区划图》(GB18306-2015)取消了不设防地区,均按抗震设计,所以,不存在非抗震情况,应当按照地震烈度区划图或者地震动参数区划图所确定的抗震设防要求进行抗震设防。结构抗震,构件不一定抗震,如非框架梁、板等构件是耗能构件,它们的锚固取值为受拉钢筋锚固长度,不能套用抗震锚固值。
变化二、总则说明8.“注明上部结构的嵌固部位位置:框架柱嵌固部位不在地下室顶板,但仍需考虑地下室顶板对上部结构实际存在嵌固作用时,也应注明。”原11G只要求:“注明上部结构的嵌固部位位置”,并没有后面这段文字。
柱平法施工图制图规则增加相关说明
2.1.4上部结构嵌固部位的注写
1、框架柱嵌固部位在基础顶面时,无需注明。
2、框架柱嵌固部位不在基础顶面时,在层高表嵌固部位标高下使用双细线注明,并在层高表下注明上部结构嵌固部位标高。
3、框架柱嵌固部位不在地下室顶板,但仍需考虑地下室顶板对上部结构实际存在嵌固作用时,可在层高表地下室顶板标高下使用双虚线注明,此时首层柱端箍筋加密区长度范围及纵筋连接位置均嵌固部位要求设置。
解读:
1、无特别说明,默认基础为框架柱嵌固部位,无需注明。当我们看到图纸上没有注明嵌固部位,即以基础顶为框架柱嵌固部位。
2、嵌固部位不仅在层高表注明,而且要在层高表下注明其标高。其实是多此一举,只要一个地方注明即可。如果两者不一致呢?
3、既然设计考虑了地下室顶板仍对上部结构实际存在嵌固作用,那么,框架柱在地下室顶板是也要按嵌固部位做法,框架柱有二个嵌固,即注明的嵌固部位和设计考虑实际嵌固作用的非嵌固部位,嵌固部位柱下端柱净高三分之一区域箍筋加密,柱纵向钢筋接头不能位于此区域。
剪力墙也要求注明上部结构嵌固部位位置,但剪力墙在嵌固部位无须特殊处理,与非嵌固部位相同,所以,是否注明意义不大。墙柱一般是全加密,只有一种间距,不像框架有加密与非加密二种间距,所以,也就不存在因为是嵌固部位需要增加加密区高度的问题。
三、柱平法施工图制图规则的变化
变化一、表2.2.2“柱编号“柱类型框支柱(KZZ)改为转换柱(ZHZ)。
《混规》(2010版)上仍保持框支柱。
《高规》(2010 版)条文说明10.2.10:本次修订将“框支柱“改为”转换柱“。转换柱包括部分框支剪力墙结构中的框支柱和框架-核心筒、框架-剪力墙结构中支承托柱转换梁的柱。转换柱是广义的框支柱。
所谓转换层就是因使用功能不同上部楼层部分竖向构件(剪力墙、框架柱)不能直接连续贯通落地。转换层的柱为转换柱,转换层的梁为转换梁。如果是局部的转换,柱为框支柱,梁为框支梁。支承上部的剪力墙框支梁,支承上部框架柱的为转换柱,支承框支梁的柱为框支柱。
变化二、2.2.2第4条:对于非对称配筋的矩形截面柱,必须每侧均注写中部筋。这段文字为新增,原11G101只说明对称边省略不注,未对非对称配筋是否标注作出规定,属于漏项。修订后的表达更为严谨。
四、剪力墙平法施工图制图规则的变化
变化一、墙梁编号表3.2.2-2新增墙梁类型连梁(跨高比不小于5),增加注2:跨高比不小于5的连梁按框架梁设计时,代号为LLK。根据《高规》第7.1.3:跨高比不小于5的连梁宜按框架梁设计。但它本质上仍然是墙梁,而不是框架梁,不同于框架结构的框架梁,之前直接用框架梁代号KL表示,人们也误以为它是框架梁,这次新增LLK是及时雨,纠正似是而非而又习以为常的错误认识,是进步。我之前发的文章中也提出要求增加按框架梁设计的连梁的代号以示区别。
第8条.跨高比不小于5的连梁,按框架梁设计时(代号为LLK**),采用平面注写方式 ,注写规则同框架梁。LLK的表示方法按框架梁,因为它的配筋形式与框架无异。LLK的构造同连梁,不能按框架梁,因为LLK属于连梁范畴。框架梁要求梁纵筋满足直锚长度时伸入支座内长度为支座宽/2+5D,而剪力墙(通常是边缘构件与墙向联体体)支座很长,伸入支座内长度为支座宽/2+5D造成极大浪费,也无必要,应按连梁构造,伸入墙内锚固长度即可。
变化二、设计施工时应注意IV.当非底部加强部位构造边缘构件不设外圈封闭箍筋时,设计者应注明。施工时,墙身水平分布钢筋应注意采取相应的构造做法。这条说明为新增。加强部位的约束边缘构件和构造边缘构件及非底部加强部位的约束边缘构件应设置封闭箍筋,而非底部加强部位的构造边缘构件可以不设封闭箍筋,之前平法对此没有任何说明,也没相应构造。
变化三、3.6.3:抗震等级为一级的剪力墙,水平施工缝处需设置附加竖向插筋时,设计应注明构件位置,并注定附加竖向插筋规格、数量及间距。竖向插筋沿墙身均匀布置。本条为新增,一般在地下室外墙设置附加竖向附加插筋,若有,设计都会注明插筋规格和间距,一般不注具体数量。
五、梁平法施工图制图规则的变化
变化一、表4.2.2梁类型增加楼层框架扁梁,代号为KBL,扁梁是客观存在的梁,其作用是节省桉层空间高度,之前没有与普通框架梁区别开来,就按普通框架梁设计和施工,但它们受力与构造有本质的不同,但其平面表示方法相同。
变化二、表4.2.2注2楼层框架扁梁节点核心区代号KBH,因为框架扁梁的宽度超过框架柱的宽度,扁梁部分钢筋在柱外,节点核心区不同于一般的梁柱节点,需要特殊处理,所以需要单独给代号。框架扁梁节点核心区包括柱内核心区和柱外核心区,柱内核心区箍筋同框架柱箍筋,柱外核心区竖向拉筋,注写其钢筋级别与直径;端支座柱外核心区尚需注定附加U形箍筋的钢筋级别、直径及根数。框架扁梁节点核心区附加纵向钢筋以大写字母“F”打头,注定其设置方向(X向或Y向)、层数、每层的钢筋根数、钢筋级别、直径及未穿过柱截面的纵向受力钢筋根数。
如KBH1 Φ10,FX&Y 2*7Φ14(4),表示框架扁梁中间支座节点核心区:柱外核心区竖向拉筋Φ10,沿梁X向(Y向)配置两层7Φ14附加纵向钢筋,每层有4根(共8根)纵向受力钢筋在柱外,柱两侧各2根。KBH1 Φ10,FX2*7Φ14(4),表示框架扁梁端支座,其余同。
变化三、表4.2.2梁类型增加托柱转换梁,代号为TZL,本图集框支梁为托墙框支梁。而框支柱取消了,用转换柱代之。框支柱对应框支梁,转换柱对应转换梁,或者框支柱等于转换柱,框支梁等于转换梁,本次修订其实有点乱,反不如11G101框支柱与框支梁两种对应的构件类型来得简洁和可理解。
变化四、表4.2.2注3.本图集中非框架梁L、井字梁JZL表示端支座为铰接;当非框架梁L、井字梁JZL端支座上部纵筋为充分利用钢筋的抗拉强度时,在梁代号后加“g”。通常情况下,框架柱与框架梁为刚接,非框架梁为绞接,当然也可以设计为半刚接,即充分钢筋的抗拉强度。在11G101中,非框架梁的构造详图中分设计按绞接时与充分利用钢筋抗拉强度时两种,梁上部纵筋在支座内平直段长度分别是0.35lab和0.6lab,伸入跨内的长度分别为ln1/5和ln1/3,而图中“设计按绞接”还是“充分利用钢筋的抗拉强度”由设计指定,设计用文字表达是很烦琐的,如果非框架梁两种情况都有,就需要一一注写。16G101在梁代号后加“g”的方法解决设计表达问题。
六、有梁楼盖平法施工图制图规则的变化
变化一、5.2.2:对于梁板式转换层楼板,板下部纵筋在支座内的锚固长度不应小于la。转换层楼板为新增内容,转换层属于加强层,需要更大的结构刚度和承载力,不管是转换柱还是转换梁还是转换层板其构造措施都要强于普通楼层,普通楼板下部纵筋伸入支座max(5d,hb/2)。
变化二 、5.2.2当悬挑板需要考虑竖向地震作用时,下部纵筋伸入支座内长度不应小于laE。5.4.1当悬挑板需要考虑竖向地震作用时,设计应注明该悬挑板纵向钢筋抗震锚固长度按何种抗震等级。一般情况下,板是不参与抗震,当悬挑板需要考虑竖向地震作用时,悬挑板下部纵筋伸入支座长度为laE。laE为抗震锚固长度,不同的抗震等级其长度不同,所以,设计要注明抗震等级(点我免费领取10个工程资料)。
变化三、5.4.3板支承在剪力墙顶的端节点,当设计考虑墙外侧竖向钢筋与板上部纵向受力钢筋搭接传力时,应满足搭接长度要求,设计者应在平法施工图中注明。本条说明为新增,之前板在墙顶的端部构造一直没有可参考和套用的节点,到底是按锚固还是按搭接?设计未明确,预算和施工也就无所适从,不知道怎么算和怎么做,随意性大。此处不能简单地按楼层板的构造。
七、无梁楼盖平法施工图制图规则的变化
变化一、6.5.2无梁楼盖板纵向钢筋的锚固和搭接需满足受拉钢筋的要求。本条为新增,无梁楼盖板纵筋受力特征为受拉而非受压,明确无梁楼盖纵筋的锚固与搭接统一按受拉钢筋,不能按受压钢筋。
变化二、6.5.4无梁楼盖跨中板带支承在剪力墙顶的端节点,当板上部纵向钢筋充分利用钢筋的抗拉强度时(锚固在支座中),直段伸至端支座对边后弯折,且平直段长度≥0.6lab,弯折段投影长度15d;当设计考虑墙外侧竖向钢筋与板上部纵向受力钢筋搭接传力时,应满足搭接长度要求;设计者应在平法施工图中注明采用何种构造,当多数采用同种构造时可在图注中写明,并将少数不同之处在图中注明。本条为新增,是关于板带支承在剪力墙顶的端节点做法。
八、楼板相关构造制图规则的变化
变化一、表7.1.2新增县挑板阴角放射筋,之前只阳角类型。是对之前的补充,有阳必有阴,才能阴阳调和,以前是图集漏项。
通用标准构造详图
变化一、受拉钢筋基本锚固长度lab、labE表拆分为受拉钢筋基本锚固长度表lab和抗震设计时受拉钢筋基本锚固长度表labE。16G101不存在非抗震一说了,受拉钢筋基本锚固长度lab相当于原来的非抗震锚固值。16G101取消四级抗震锚固长度值,四级抗震的锚固值与非抗震锚固长度值相同。
抗震与非抗震锚固长度的关系,以非抗震锚固长度为基数,不同的抗震等级乘以不同的修正系数ζaE。
LaE=ζaEla
表一 抗震锚固长度修正系数ζaE
抗震等级 |
ζaE |
一、二级抗震 |
1.15 |
三级抗震 |
1.05 |
四级抗震 |
1.0 |
变化二、增加受拉钢筋锚固长度表la和抗震设计时受拉钢筋锚固长度表laE,增加钢筋大于25的锚固值,这又回到03G101的做法。原11G101整合一张基本锚固长度表,受拉钢筋锚固值使用者根据情况乘相应修正系数ζa。
基本锚固长度与锚固长度关系是以基本锚固长度为基数,不同的锚固条件乘以相应的修正系数ζa。实际应用中一般是大于25乘系数1.1,环氧树脂涂层带肋钢筋很少使用,施工过程中易受扰动时难以鉴定,所以一般不作处理。
La=ζalab
表二 受拉钢筋锚固长度修正系数ζa
锚固条件 |
ζa |
|
环氧树脂涂层带肋钢筋 |
1.25 |
|
施工过程中易受扰动时 |
1.1 |
|
钢筋直径大于25 |
1.1 |
|
锚固区保护层 |
3d |
0.8 |
5d |
0.7 |
|
变化三、增加钢筋搭接长度表,也分为受拉钢筋搭接长度Ll表和受拉钢筋抗震搭接长度LlE表,也是回归03G101模式。钢筋的搭接长度与锚固长度的关系:以锚固长度为基数,根据搭接百分率乘相应修正系数ζl,分受拉与抗震。
受拉:Ll=ζl La
抗震:LlE=ζl LaE
纵向受拉钢筋搭接长度修正系数ζl
纵向钢筋搭接接头面积百分率(%) |
≤25 |
50 |
100 |
ζl |
1.2 |
1.4 |
1.6 |
变化四、增加钢筋弯折的弯弧内直径D规定:
1、 光圆钢筋,不应小于钢筋直径的2.5倍。
2、 335MPa级、400MPa级带肋钢筋,不应小于钢筋直径的4倍。
3、 500MPa级带肋钢筋,当直径≤25时,不应小于钢筋直径的6倍;当直径>25时,不应小于钢筋直径的7倍。
4、 箍筋弯折处尚不应小于纵向受力钢筋直径;箍筋弯折处纵向受力钢筋为搭接或并筋时,应按钢筋实际排布情况确定箍筋弯弧内直径。
5、 位于框架结构顶层端节点处的梁上部纵向钢筋和柱外侧纵筋,在节点角部弯折处,当钢筋直径≤25时,不应小于筋直径的12倍;当直径>25时,不应小于钢筋直径的16倍。
这比较夸张,实际钢筋加工成型时不会使用没么大直径的圆轴弯曲钢筋。
原11G101框架结构顶层柱外侧纵筋与梁上部纵筋节点角部弯折处,当钢筋直径≤25时,r=6d;当直径>25时,r=8d。框架结构顶层端节点钢筋弯折内径没变化,不过是11G101按半径,16G101按直径(点我免费领取10个工程资料)。
弯曲内直径主要是针对钢筋加工成型,实际没有这么大轴径的设备机械,一般就按内直径4D。当然,不同的钢筋弯折内径,钢筋长度也有细微的差异,一般情况是忽略不计。
变化五、增加剪力墙拉结筋的做法。之前,剪力墙拉筋一般都套用柱梁的拉筋构造,弯钩平直段长度非抗震5d,抗震为max(10d,75),弯钩角度为135度。剪力墙一般为抗震设计,所以,按max(10d,75), 135度弯钩进行施工和翻样,监理验收也是如此要求。16G101剪力墙中的拉筋弯钩平直段统一取5d,弯钩角度既可以两端都取135度,也可以一端弯90度,一端弯135度,这样更方便施工。施工人员也习惯于采用一端90度一端135度的做法,待绑扎完后再用小型止口扳工具把90度的一端弯成135度,实际上是多此一举,白白浪费人工。
柱
变化一、16G101新增地下一层增加钢筋在嵌固部位的锚固构造,钢筋弯折可以向内也可向外,原1G101弯折方向只有向内一种。
根据《建筑抗震设计规范》第6.1.14条:地下室顶板作为上部结构的嵌固部位时,应符合下列要求:
地下一层柱截面每侧纵向钢筋不应小于地上一层柱对应纵向钢筋的1.1倍,且地下一层柱上端和节点左右梁端实配的抗震受弯承载力之和应大于地上一层柱下梁端实配的抗震受弯承载力的1.3倍。
地下一层梁刚度较大时,柱截面每侧的纵向钢筋面积应大于地下一层对应柱每侧纵向钢筋面积的1.1倍;同时梁端顶面和底面的纵向钢筋面积均应比计算增大10%以上。
当框架柱嵌固在地下室顶板时,首层柱下端为“弱柱”设计,即地震时首层柱底屈服,出现塑性 绞。框架柱嵌固端屈服时,地下一层对应的框架柱或抗震墙墙肢不应屈服,因此规定了地下一层框架柱纵筋面积至少比地下结构柱下端的钢筋增加10%。
在地下一层增加10%钢筋,由规范规定,也由设计指定,这部分钢筋在嵌固部位梁顶弯折或截断。设计未指定时表示根据承载力计算,地下一层比上层柱多出的钢筋,应伸入上层1.2LaE,不能参照下图构造。
图一 地下一层在嵌固部位增加钢筋构造
变化二、关于跃层柱净高的新规定
表2.1 柱净高规定比较
11G101-1 P61 |
16G101-1 P65 |
比较 |
当柱在某楼层各向均无梁连接时,计算箍筋加密范围采用的Hn按该跃层柱的总净高取用。 |
当柱在某楼层各向均无梁且无板连接时,计算箍筋加密范围采用的Hn按该跃层柱的总净高取用。 |
11G101只规定各向均无梁情况下柱净高的取值,一个方向有梁一个方向无梁的情况未作规定。 |
当柱在某楼层单方向无梁且无板连接时,应该两个方向分别计算箍筋加密区范围,并取大值。 |
一个方向有梁一个方向无梁,加密区范围是按无梁计算。 |
图二 跃层柱平面布置图
KZ1两个方向均有梁,KZ2一个方向有梁,KZ3两个方向均无梁。按16G101的规定KZ3柱净高按跃层总高度,这与11G101相同。另外一个方向有梁一个方向无梁的柱,应该两个方向分别计算箍筋加密区范围,并取大值,按层高大的计算其净高,通常是按跃层计算柱净高如图中KZ2。11G101只规定各向均无梁的情况,未考虑一个方向无梁一个方向有梁的情况。
之前不管是两个方向均有梁还是一个方向有梁,都按楼层高度减梁高为柱净高。16G101只要一个方向无梁就按跃层高度计算净高,箍筋用量增加。
变化三、刚性地面上下各加密500,11G101只有刚性地面同一标高情况,如下图左图。16G101增加相邻刚性地面不在一个标高情况下柱箍加密的做法,刚性地面高差部分也需要加密。
图三 底层刚层地面柱箍筋布置
变化四、取消非抗震柱的纵筋连接构造、顶层纵筋连接构造、变截面位置纵筋构造、箍筋构造。因为16G101不适用非抗震结构,《中国地震动参数区划图》(GB18306-2015)取消了不设防地区,所有地区新建改建项目均要设防。
变化五、增加KZ边柱、角柱柱顶等截面伸出时纵向钢筋构造。
图三 边角柱顶等截面伸出时纵向钢筋构造
顶层边柱、角柱伸出屋面,层面柱梁不按屋面柱梁构造,可近似地按楼层柱梁节点构造。柱顶钢筋连续通过屋面框架梁,满足直锚时不弯折,见上图①;不能满足直锚时,柱内侧纵筋弯折12d, 柱外侧纵筋弯折15d,见上图②。
变化六、梁上柱有变化,16G梁上柱插筋弯折长度改为15d,梁高≥0.6labE且≥20d,插筋伸至梁底。原11G梁高≥0.5labE,弯折长度为12d。
图六 梁上柱LZ插筋构造
墙
变化一、剪力墙水平筋弯折要求在暗柱外侧纵筋的内侧,也是回归03G101的做法。原11G101墙水平筋弯折在暗柱外侧纵筋外侧。剪力墙水平筋弯折在暗柱外侧纵筋的内侧是合理的,虽然暗柱不是墙的支座,但暗柱作为墙竖向加强部位对剪力墙提供约束,剪力墙水平筋弯折在暗柱内侧既能增加墙水平筋与暗柱的的“锚固”,也能节省钢筋用量。同时,也与翼墙和转角墙内侧水平钢筋构造统一,它们都在柱外侧纵筋的内侧,区别是一字型墙水平端端弯折10d,后者是15d。右图墙端部是L型暗柱,但不是转角墙,L型暗柱的下侧相当于墙垛,而不是一道墙,所以不能按转角墙处理(点我免费领取10个工程资料)。
图一 墙水平端部构造
变化二:取消剪力墙水平分布钢筋端部采用U形钢筋的做法,实际施工中也没有这种做法,因为反而是增加接头长度,可以直接伸至墙端部。
图二 墙水平端部构造
变化三、剪力墙(翼墙)内侧水平分布筋在端柱内可以接通也可锚固。但外侧与端柱平的水平筋必须拉通。当墙水平筋伸入支座内大于2个锚固长度时,则锚固是划算的,否则,贯通反而是节省的。由于图集规定不明确,用词不严谨,“或”说明两者均可,没有限定条件,在施工与结算过程中不可避免地产生争议,如施工按锚固,结算按贯通,或施工按贯通,结算按锚固,总之,施工时按钢筋用量较少的,结算时按数量较多的。应该这样规定:当端柱支座长度≤2LaE时,墙水平筋贯通端柱。当端柱支座长度>2LaE时,墙水平筋锚入端柱。
图三 墙水平在端柱内构造
变化四、翼墙变截面拉通做法,当变截面差值与相交构件宽度值之比小于1:6时可贯通,此不仅限于墙,所有构件的变截面处构造都参照此原则。
图四 翼墙变截面水平筋贯通
变化五、增加剪力墙水平施工缝处抗剪用钢筋连接构造,钢筋长度为施工缝上下各一个锚固长度。钢筋规格、排数、间距由设计人员指定。
图五 墙水平施工缝处附加钢筋
变化六、修正剪力墙上起边缘构件纵筋构造,边缘构件插入墙内长度1.2laE范围长度内箍筋直径不应小于纵向钢筋最大直径的0.25倍,间距不大于100。原11G101并未规定柱在墙内锚固范围内设置箍筋的规定。
图六 墙上柱构造
变化七、墙构件取消受拉钢筋(非抗震)锚固和搭接长度取值,全部按抗震考虑,见下图。
图七 暗柱转角墙构造
变化八、外侧水平筋在转角处搭接长度规定为1.6LaE。但是端柱转角墙外侧水平在转角处弯折15d,不能误用。
原11G101外侧水平筋在转角处只笼统给出搭接长度LlE。那么到底是按1.2LaE还是1.4LaE还是1.6LaE?众说纷纭莫衷一是,图集本身没明确。
外侧水平筋在转角处搭接长度按1.2LaE的理由是剪力墙不管何种搭接百分率情况,其竖向搭接长度与水平搭接长度均为1.2LaE。
外侧水平筋在转角处搭接长度按1.4LaE的理由是剪力墙水平筋搭接百分率为50%,按照搭接百分率修正系数,搭接百分率50%为1.4,所以搭接搭接长度均为1.4LaE。
外侧水平筋在转角处搭接长度按1.6LaE的理由是剪力墙水平筋在转角处搭接百分率为100%,按照搭接百分率修正系数,100%为1.6,所以搭接搭接长度均为1.6LaE。
每种观点似乎都有其道理,在计算和对量时难免有分歧和争论。本次新平法把它明确下来,以后就不用争了,也不用论证了。我在做培训和回答疑问时一直坚持剪力墙水平筋在转角处搭接长度为1.6LaE的观点,也不因立场不同而改变。
变化九、修正墙水平筋伸入端柱内长度,16G101规定如下:墙水平筋(指端柱凸出墙外)伸入端柱内长度≥LaE时,可直锚,进入端柱一个锚固长度,既不必弯折,也不必伸到端柱对边。不能满足直锚时,则弯折15d。墙水平筋(指端柱未凸出墙)剪力墙水平分布筋应伸至端柱对边紧贴角筋弯折。与端柱平齐步的钢筋按普通墙处理,伸至端部后弯折。
这是很大进步,对原不合理规定进行必要的纠偏。
原11G101“当墙体水平钢筋伸入端柱的直锚长度≥LaE(La)时,可不必上下弯折,但必须伸至端柱对边竖向钢筋内侧位置,其他情况,墙体水平钢筋必须伸入端柱对边竖向钢筋内侧位置然后弯折。”
图八 端柱转角墙构造
端柱形状同框架柱,但不是独立构件,不独立受力变形, 端柱与剪力墙身是一个整体,端柱是剪力的一部分,端柱是用来约束墙体并提高墙体的稳定性能。
端柱与暗柱虽然都属于墙柱范畴,是墙边缘竖向加强带,但它们的不同之处是暗柱宽同墙厚,端柱凸出墙体之外,其侧向刚度大于剪力墙。
剪力墙水平分布钢筋伸入端柱内,当直线锚固满足锚固长度后,锚固钢筋即能满足设计强度要求,就可实现可靠的锚固。
剪力墙外侧未凸出墙面,其墙肢外侧水平筋的受力状态与暗柱型转角外墙相同,但转角处不需要搭接,只要弯折15d。
原11G101当墙体水平筋的直锚长度大于锚固长度不必上下弯折,但必须伸至对边竖向钢筋内侧位置,《混规》中并无这样的规定,实属无端浪费。
变化十、增加抗震缝处墙局部构件,一般情况是基础相连,抗震缝处两侧墙分离。如图集所示墙下合上分的很少见。
图九 抗震缝处墙局部构造
变化十一、16G101新增剪力墙拉结筋起始位置规定, “剪力墙层高范围最下一排拉结筋位于底部板顶以上第二排水平分布钢筋位置处,最上一排拉结筋位于顶部板底(梁底)以下第一排水平分布钢筋位置处。”竖向拉结筋起始位置是从第一排还是第二排?图集未作规定,边缘柱非阴影部分是每根竖向钢筋均设墙拉结筋,墙边缘为端柱及其他暗柱情况下,墙竖向拉结筋起始位于第一排竖向分布筋。
变化十二、约束边缘构件阴影部分、构造边缘构件、扶壁柱及非边缘暗柱的纵筋搭接长度范围内,箍筋直径应不小于纵向搭接钢筋最大直径的0.25倍,箍筋间距不大于100。取消了原11G101要求此类柱搭接区箍筋间距不大于纵向搭接钢筋最小直径的5倍的不合理规定。之前我撰文指出,箍筋间距不大于纵筋直径5倍是错误的规定,柱纵筋直径越小,间距越小,箍筋用量越大,含钢量是反而是增加的。实际是纵筋直径越小其承载力越小,不需要这么密的箍筋,当然也不会这样去施工,而结算时施工单位提出按图集规定。当初笔者也是建议搭接部分箍筋间距按100比较合适。
变化十三、约束边缘构件16G101提供两种做法,第一种是拉筋式,第二种是箍筋式,那么,何种情况采用(一)的做法,何种情况采用(二)的做法,旧图集11G101并未明确,16G101规定如下 :当约束边缘构件内箍筋、拉筋位置(标高)与墙体水平分布筋相同时可采用详图(一)或(二),不同时应采用详图(二)。换言之,柱箍与墙水平筋间距相同可采用详图(一)的做法,如果不同则必须采用详图(二)的做法。间距不同,柱内拉筋与墙水平筋错位,所以,应采用箍筋式。
图十 约束边缘构件YBZ构造
变化十四、楼层双洞口连梁(双跨)中间部分不布置箍筋,原11G101需要布置箍筋,实无必要,中间一般为暗柱,本质也是支座,除了顶层连梁在锚固区设置约束箍筋外,支座处不需要配置梁箍筋。
图十一 双洞口连梁构造
变化十五、增加连梁类型,原11G101-1图集连梁只有梁在楼层标高,16G101增加跨层连梁构造,同时,跨层连梁又有两种:一是同截面,二是变截面。同截面回层连梁侧面钢筋按正常间距布置,变截面跨层连梁在变截面处设置不少于2根直径不小于12的钢筋。跨层连梁设计较普遍,一般用于上下洞口之间。
图十二 连梁构造
变化十六、16G101新增剪力墙连梁LLK纵向钢筋、箍筋加密构造,LLK本质上是属于连梁,但因为它是按框架梁设计,所以,LLK钢筋构造与框架梁有相同的地方,如梁上部贯通筋不同钢筋直径时搭接、架立筋与非贯通筋的搭接、非贯通筋伸入跨内的长度、箍筋加密区范围,LLK端部构造不同于框架梁,而与连梁相同。LLK就是混合了连梁与框架梁的构造。
图十三 剪力墙连梁LLK构造
变化十七、顶板作为外墙(地下室)的弹性嵌固支承时,墙外侧竖向纵筋弯折15d,板上部纵筋与墙外侧搭接LlE(Ll)。原11G101没有规定墙外侧竖向纵筋弯折弯折长度,一般是按LlE(Ll)/2处理。顶板作为外墙(地下室)的弹性嵌固支承时就是地下室顶板作为上部结构的嵌固端。混凝土为弹性材料,混凝土结构支承实际均为弹性,根据支承刚度强弱分为刚性支承和半刚性支承,“弹性嵌固支承”可理解为刚性支承,左图②的简支支承可视作半刚性支承。
图十五 顶板作为外墙的弹性嵌固支承
梁
梁乃水平方向线性受弯构件,栋梁之谓也。梁应用面广,种类繁多,本文中的梁特指框架结构中的梁,包括框架梁与非框架梁及框扁梁、悬挑梁等,不包括基础构件中的梁和剪力墙结构中的梁,不可混也。
变化一、在楼层框架梁KL纵向钢筋构造(16G101-1 P84页)新增注7说明:“当上柱截面尺寸小于下柱截面尺寸时,梁上部钢筋的锚固长度起算位置应为上柱内边缘,梁下纵筋的锚固长度起算位置为下柱内边缘。”之前遇到上下柱截面不同时,采取简易计算方法,梁锚固以下柱为支座计取。新的图集要求梁上部钢筋支座按上柱,梁下部钢筋按下柱,虽然增加计算难度,但更科学合理,因为柱变截面区,梁上部钢筋与下柱之间只有薄薄的保护层,真正对它起锚固作用的是上柱。
变化二、16G101取消了非抗震楼层框架梁KL纵向钢筋构造和非抗震屋面框架梁纵向钢筋构造。因为本图集不包括非抗震设计,也不存在没有抗震设防的结构设计,所以,非抗震构件构造全部取消。
变化三、KL、WKL中间支座两侧梁高不同或标高不同时,采用弯锚和直锚,不能贯通则弯锚,否则,可直锚。直锚长度≥LaE且≥0.5Hc+5d,两者取大,与框架梁上下纵筋在支座处直锚规定同。原11G101图集只要求锚固LaE。
图一 梁变截面构造
变化四、16G101增加非框架梁下部纵筋伸入边支座不满足直锚12d(15d)时弯折构造。11G101图集因为没有对此作出规定,软件算量按12d(15d)计算,如果直锚不够,则用弯折补足,有时弯钩只有几毫米,显然是不能满足施工要求。之前笔者建议不能满足直锚时弯折5d,新图集要求伸至支座对边后弯折,未端带135度弯钩,平直段长度5d。如果是90度弯钩,平直段长度12d,而135度弯钩平直段长度5d就够了。
图二 非框架下部纵筋端支座构造
变化五、16G101增加非框架梁注5:“当梁纵筋兼做温度应力筋时,梁下部钢筋锚入支座长度由设计确定。”梁纵筋兼做温度应力筋的情况不多见,即使有,也由设计给出锚固长度。
变化六、16G101悬挑梁梁面标高低于框架梁时,梁上部纵筋伸入框架柱(梁)内的长度为直锚长度≥La且≥0.5Hc+5d,两者取大。原11G101图集只要求锚固La。
图三 悬挑梁上部纵筋构造之一
变化七、当悬挑梁上部钢筋为一排,且悬挑梁净长L<4hb(梁高)时,上部钢筋全部伸到悬挑梁外端弯折12d,可不采用弯起钢筋。
图四 悬挑梁上部纵筋构造之二
变化七、16G101新增扁梁中间节点和端节点构造。
图五 框架扁梁中柱节点构造
图六 框架扁梁边柱节点构造之一
图七框架扁梁边柱节点构造之二
(1) 框架扁梁箍筋加密从垂直方向的扁梁边缘开始,而不是从柱边开始;
(2) 柱梁核心区设附加纵向钢筋,中间节点伸出核心区两边各一个锚固长度,边柱但出住外一个锚固长度。核心区附加纵向钢筋由设计确定;
(3) 柱梁核心区柱外附加纵向钢筋设置竖向拉筋,拉筋同时勾住扁梁上下双向纵筋;
(4) 穿过柱截面框架扁梁纵向受力钢筋锚固构造同框架梁;
(5) 柱内核心区箍筋同框架柱箍筋;
(6) 当hc(柱宽)-bs(边梁宽)≥100时,柱外核心区设U型箍筋及竖向拉筋;
笔者主张框扁梁箍筋在柱支座位置贯通,既简单又能确保核心区的锚固强度,若受力不能满足可加大箍筋直径,其实钢筋用量并不比附加纵筋和拉筋的做法多,且施工和翻样都方便。核心区梁内附加纵筋固定都是个问题,混凝土浇筑时易掉落。
变化八、16G101新增框支梁上部墙体开洞部位加强做法,框支梁上部墙体开洞对墙有影响,对支承墙的框支梁也有影响。如果洞口离框支梁较远,则用暗梁,如果离得较近,则设附加钢筋,且框支梁箍筋加密,如果洞口底标高在框支梁面标高,则框支梁加密。
图八 框支梁上部墙体开洞加强部位做法
板
混凝土结构中的板分为有梁楼盖与无梁楼盖,前者包括有梁板、井字形板、肋(梁)板和平板,板是支承在梁上;后者是板柱结构,板支承在柱上。
变化一、新增转换层板筋构造,转换层板下部纵筋在端支座锚固同上部纵筋,转换层板下部纵筋伸入支座长度Lae,当直锚长度不足时,伸到支座梁外侧纵筋内侧后弯折,弯折长度15d。平直段长度不小于0.6laE是对设计的要求,一般情况下是能满足的。
图一 转换层板纵筋构造
变化二、新增板在剪力墙墙顶的端支座构造。与端部支座为剪力墙中间层相差不大,主要的区别是对平直段长度的要求,当设计按绞接时:≥0.35LaE,当充分利用钢筋的抗拉强度时:≥0.6Lae。设计按绞接还是充分利用钢筋抗拉强度由设计注明或如非框架梁用不同代号以示区别。当墙外墙竖向钢筋与板上部钢筋搭接时,搭接长度为Ll,应该理解为1.6La,同时要求板上部纵筋弯折断点位置位于板底之下,此属于定性要求,而没有定量规定,易引起不必要的争议,如伸至板底,或者伸至板底加5d,一定要量化才有可操作性。墙外侧钢筋弯折长度15d,一般情况下墙顶纵筋弯折是12d,此处考虑屋面板上部钢筋与剪力墙外侧竖向钢筋搭接传力时墙顶纵筋弯折15d。顶板作为外墙的弹性嵌固支承时墙顶纵筋也是弯折15d。
图二 板在墙顶端部构造
变化三、新增板带在剪力墙中间层和墙顶的端支座构造。
1、 跨中板带在剪力墙中间层上部纵筋平直段≥0. 4Lab,弯折15d,下部纵筋伸入墙内12d且过支座中心线。
2、 跨中板带在剪力墙顶连接有两种,一种搭接连接Ll,墙外侧水平筋弯折15d,板上部纵筋弯折断点位于板底。板下部纵筋伸入墙内12d且过支座中心线。第二种是板上部纵筋充分利用钢筋的秔拉强度,上部纵筋平直段≥0. 6Lab,弯折15d,下部纵筋伸入墙内12d且过支座中心线。
3、 柱上板带在剪力墙中间层上、下纵筋平直段≥0. 4Lab,弯折15d。
4、 柱上板带在剪力墙顶墙外侧钢筋与板上部纵筋搭接Ll,墙外侧水平筋弯折15d,板上部纵筋弯折断点位于板底;下纵筋平直段≥0. 4Lab,弯折15d。
图三 板在墙顶端部构造
楼梯
16G101-2楼梯没有根本性变化,基本上已经定型了,但有些细微的变化,不可不察也。
虽然有了电梯,但楼梯永远无法被取代,是建筑设计标配,因为电梯会有故障,而楼梯不会。楼梯是建筑物中作为楼层间垂直交通用的构件,也是火灾时唯一逃生通道。楼梯由连续梯级的梯段、休息平台、梯梁梯柱和围护构件等组成。
变化一、取消代号HT楼板,原11G101的HT梯板支承方式改为现GT梯板支承方式。11G101中FT型 和GT型(由层间板、踏步段和楼层平板构成)两者高相似度,16G101-2把FT型 和GT型合并为FT, 取消GT,然后把HT改为GT,即取消层间平板端单边支承方式。
图一 FT型和GT型
变化二、增加梯板CTa和CTb型,CTa和CTb型为带滑动支座的板式楼梯,楼板由踏步段和高端平板构成,其支承方式为梯板高端支承在梯梁上,CTa型梯板低端带滑动支座支承在梯梁上,CTb型梯板低端带滑动支座支承在挑板上。ATa 、ATb都是带滑动支座的板式楼梯,全部由跳步段构成。ATa 、ATb、CTa和CTb型适合用于装配式建筑结构预制楼梯段与结构的连接,但此处楼梯为现浇。
图二 CTa型
图三 CTb型
变化三、ATc型全部由踏步段构成,其支承方式为梯板两端均支承在梯梁上,与AT类似,但设计标准更高,要求梯板两侧设置暗梁。梯板厚度不小于140mm,按双层双向配筋,这与11G要求相同,采用带E钢筋(钢筋抗拉强度实测值与屈服强度实测值比值不小于1.25;钢筋的屈服强度实测值与屈服强度标准值的比值不大于1.3;钢筋在最大拉力下的总伸长率实测值不小于9%三项指标),此说明为新增。当然,其他梯板也采用带E钢筋,画蛇添足纯属多余。
变化四、ATb楼梯楼梯休息平面钢筋在挑板内钢筋改为U型,原11G为L型,且没有挑板剖面详图。
图四 ATb型
基础
基础分为刚性基础和柔性基础。
刚性基础(rigid foundation)主要承受压应力的基础,受刚性角限制,一般由抗压性能好、抗拉、抗剪性能较差的材料(如混凝土、砖、毛石、灰土、三合土等)做基础,用于地基承载力较好、压缩性较小的民用小型建筑。
柔性基础(flexible foundation )承受弯矩,不受刚性角限制,由抗拉、抗压、抗弯抗剪均较好的钢筋混凝土材料做基础,用于地基承载力差、上部荷载大、基础埋深深和设有地下室的建筑。
扩展基础,通过基底外扩,使作用于基底的压应力小于或等于地基允许承载力,而基础内部的应力满足其本身的强度要求,如独基和条基。
基础构件包括桩基、独基、条基、筏基。桩基包括桩与承台;条基分为墙下条基和柱下条基;筏基又分为梁板式筏基和平板式筏基。
基础类型一般由一种或若干种基础构件进行组合而成。
变化一、增加灌注桩平法施工图的表示方法,灌注桩类型分为:灌注桩和扩底灌注桩。
图一 灌注桩编号表
灌注桩平法施工图的表示方法有列表注写和平面注写两种。
图二 灌注桩列表注写
(一)、列表注写:
在桩表中注写:桩编号、桩尺寸、纵筋、螺旋箍筋、桩顶标高、单桩竖向承载力特征值。
1、桩编号:GZH1
2、桩尺寸:(桩径*桩长),如800*20000
3、纵筋:
(1)、通长等截面配筋,注写全部纵筋,如16Cφ25;
(2)、部分长度配筋,注写桩纵筋如16φ28/15000;
(3)、通长变截面配筋,注写桩纵筋包括通长纵筋12φ25,8φ22/10000,表示桩通长纵筋为12φ25;桩非通长纵筋为8φ22,从桩顶伸入桩内长度为10000,桩顶范围内10000内钢筋为12φ25+8φ22。
4、螺旋箍筋,Lφ8@100/200,L表示螺旋箍筋,箍筋强度级别为HRB400级钢筋,直径为8,加密区间距为100,非加密区间距为200。加密区长度由设计注明,笔者建议加密区长度直接标注在螺旋箍筋之后,如Lφ8@100/200(3000),括号内数字为螺旋箍筋加密区长度。
5、桩顶标高,由设计注写。
6、单桩竖向承载力特征值(单位KN),如2400。此不必注定,施工与造价都不需要此数据。
(二)、平面注写:
直接在桩平面布置图桩旁边注写,注写规则同列表注写。
图三 灌注桩平面注写
变化二、增加防水板(代号为FBPB)构造类型,防水板用于独基、条基、桩基加防水板。防水板与筏板的区别是:防水板非基础受力构件,筏板是基础受力构件。防水板平面注写方式与板类似,由防水板编号、厚度、底部双向钢筋、顶部双向钢筋、标高等构成,如:
FBPB1 h=250
B:X&Y 12@200
T:X&Y 10@150
防水板底面标高为选注项,当防水板底标高与独基或条基底标高一致时可不注。
变化三、基础构件混凝土保护层进行了细分。分构件、分混凝土强度、分环境类别。基础梁的保护层比基础构件大50mm,混凝土强度大于C30时保护层减少50 mm,环境类别每增加一个级别,保护层增加50mm,有规律可循。
图四 基础保护层
变化四、当基础高度≤Lae时,柱、墙插筋在基础内弯折长度为15d,基础高度≥0.6LabE且≥20d。当基础高度≥Lae时,且保护层≥5d时,墙插筋隔二下一伸至基础底,而不必都插入基础底,此规定可节省钢筋。
图五 墙插筋隔二下一
变化五、当基础高度满足直锚,且保护层大于5d时,剪力墙在基础内插筋弯折长度6d且≥150。11G101-3墙插弯折6d,没有≥150的要求。
图六 墙插筋构造
变化六、新增边缘构件纵向钢筋在基础内的插筋构造。之前边缘构件插筋到底是参照墙还是柱是有争议的,认为参照剪力墙的理由是边缘构件是墙柱,属于墙类型,所以,同墙插筋构造;认为参照柱的理由是边缘柱是柱,所以,同柱插筋构造。边缘构件确实很难界定是墙还是柱,它是墙柱,兼有两者的属性,与柱纵向钢筋在基础内构造基本相同,同时,当基础高度满足直锚,且保护层厚度≥5d时,边缘构件角部纵筋伸至基础板底(或中间层钢筋网片上),其他纵筋伸入基础内≥Lae,不必弯折,也不必坐底,这与基础高度满足直锚时墙插筋“隔二下一”异曲同工,而柱插筋均须座底。
图七 边缘构件插筋构造
变化七、条十字型和丁字型条基受力筋b/4p之外分布筋拉通,原11G101-3条基相交处分布筋伸入150。
图八 条形基础构造
变化八、原基础梁JL构造拆分为梁板式筏形基础梁和条形基础梁,但构造基本相同,区别是条形基础梁下部无非贯通筋部端构造。16G101-与11G101最大不同是“端部等(变)截面外伸构造中,当bn’+hc≤la时,基础梁下部钢筋应伸至端部后弯折,弯折长度为15d,且从柱内边算起水平段长度≥0.6lab(11G为0.4lab),这是对设计的要求。
图九 基础梁构造
变化九、平板式筏形基础无外伸,底部钢筋在墙内平直段长度≥0.6lab,11G为0.4lab。
变化十、等腰三桩承台增加注3~5,一是钢筋分布要求每边最里面的1根钢筋应在柱截面内,最小配筋率≥0.15%,最小直径12,最大间距200,板带上宜布置分布钢筋。
图十 三桩承台构造
变化十一、增加双柱联合承台底部与顶部配筋构造,与其他桩承台构造没有区别,没有必要。
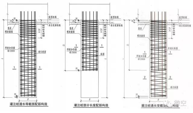
变化十二、增加灌注桩构造,分为通长等截面配筋、部分长度配筋和通长变截面配筋。
图十一 灌注桩构造
变化十三、增加灌注桩顶构造,有直锚、斜锚(75度)和弯折锚固。当承台高度不能满足直锚时,灌注桩纵筋伸至承台顶弯折15d,垂直段长度≥0.6lab且≥20d,这是对设计的要求。
图十二 灌注桩桩顶构造
变化十四、增加搁置在基础上的非框架梁,基础上的非框架梁不能按非框架梁构造,而与连梁构造类似,非框架梁上下从筋伸入支座内la,但没有≥600的要求。
图十三 基础上非框架梁构造
工程师必备
- 项目客服
- 培训客服
- 平台客服
TOP




















