10类常见地面施工流程交底方案,建议收藏备用!
2022年9月28日 09:54
10类常见地面施工流程交底方案
| 01 普通地面石材施工 | 06 石材加厚边施工 |
| 02 地面地漏施工 | 07 地毯与踢脚线收口 |
| 03 淋浴房石材施工 | 08 木地板铺装施工 |
| 04 门套根部防水处理 | 09 木地板与石材收口 |
| 05 楼梯地面石材施工 | 10 地面地胶板施工 |
01 室内普通地面石材施工
▉工序:
准备工作(①大理石背网铲除②六面 防护③专业粘结剂拉毛) →弹线→核对编号→根据安装图试拼→基层处理(清理浮灰及刷素水泥浆) →水泥砂浆结合层→石材专用 粘结剂→铺地面石材→开缝→石材专用胶调 色补胶→晶面处理
▉重点说明:
1、厨卫石材铺贴前,须通过 48小时蓄水试验。防水应采用柔性防水涂料,须纵横防水涂层各一遍及保证达到设计规范要求的厚度, 以保证防水层密封性。防水层未干前严禁进行蓄水试验,如蓄水过 程中发现水变浑浊或泛乳白色,说明防水层养护时间不够或产品质 量存有问题,防水层已被水溶解、破坏,防水失败,须重做。厨卫 湿区(如沐浴房、浴缸)的墙面防水涂层高度不低于1800mm,干 区的墙面防水涂层高度不低于300mm。
2、石材铺贴采用32.5MPa普通硅酸盐水泥混合中砂或粗砂,(含泥量不大于3%)1:3配比,作为结合层。
3、石材需做六面防护,石材六面防护须纵横各一遍,待第一遍防护干了以后开始刷第二遍防护,干后进行下道工序。大理石应先铲除 背后网格布后进行六面防护。
4、石材面层铺贴前应用专用锯齿状胶刮刀背面刮一层粘结剂,晾干后再进行铺贴。浅色石材应采用白色石材专用粘结剂。
02 地面地漏安装
▉重点说明:
1、地漏定位需提前地面排版,实地放线,尽量设置在靠近下水管处。
2、地漏、排水管口径需符合排水流量要求,排水管需设置盛(存)水弯。 3、地面找坡符合排水要求,找坡率0.3%~0.5%。。
4、单体空间15平米以上建议做双地漏。
5、建筑没有高差层,建议露台做地沟。
▉重点说明:
1、楼板开孔需大于排水管管径40mm~60mm,孔壁需进行凿毛处理。需用专用模 具支撑,浇捣需用水泥砂桨分二次以上封 堵浇捣密实。
2、地漏的排水管口标高应根据地漏型号 确定,使排水管与地漏连接紧密。
3、地漏安装时周边的砂桨应填充密实。
4、地漏、排水管口径需符合排水流量要求,排水管需设置盛(存)水弯。
03 淋浴 石 材 施工
▉工序:
准备工作→弹线→翻边钢筋预植→ 翻边制模浇捣→防水处理→刷水泥浆结合层铺砂浆→刷专用粘结剂→铺地面石材→灌缝 、擦缝→石材晶面处理
▉重点说明:
1、淋浴房挡水条需按设计图纸要求于现场弹线,结构楼面预植Ø6mm圆钢,间距不大于 300mm,在顶端处焊接Ø6mm圆钢连接,制模 浇捣翻边,翻边处地面应预先凿毛,采用细 石砼(瓜子片)浇捣,挡水翻边与墙体交接 处应伸入墙体 20mm,并与地面统一作防水 处理。靠墙安装的玻璃开门五金合页,需预 埋 3mm厚镀锌铁件与结构墙体固定 (点击关注☞建筑10大技术类公众号) 。
2、挡水条靠淋浴房侧需做止口及倒坡,挡 水条与墙面交接处需用云石胶嵌实。
3、地沟宽度应根据地漏规格确定。
4、淋浴房石材需用湿铺工艺铺贴。
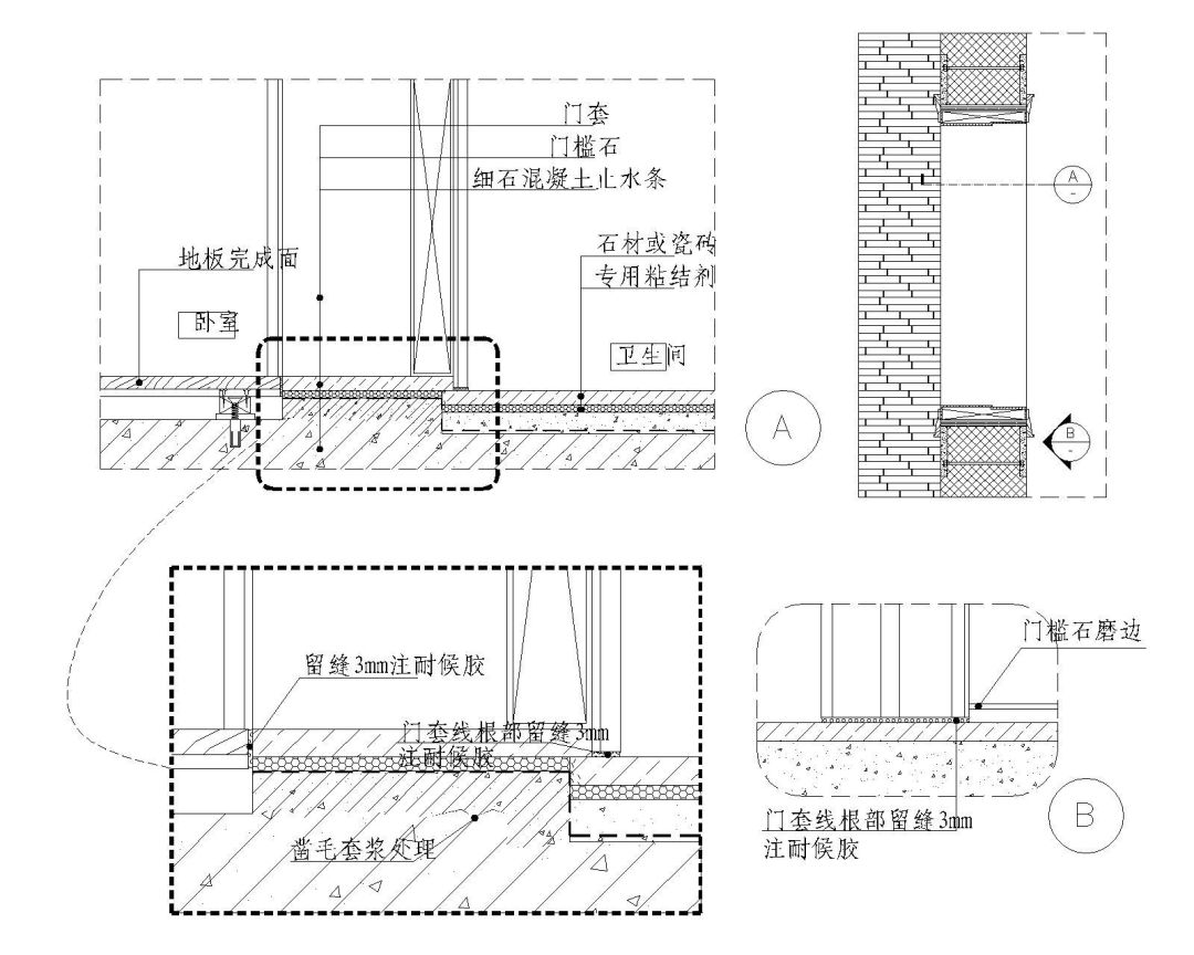
04 厨卫门套根部防水施工
厨卫门套根部防水施工示意工
▉重点说明:
1、卫生间、厨房间门框基层板根部离门槛石面留缝约20mm,根部用防水胶泥填实,以防止水气渗入门框内引起油漆饰面变形发霉。
2、门框基层需进行三防处理(防火、防腐、防潮)。
厨卫门套、门槛石安装示意图01
▉重点说明:
1、门樘板下口做止水条,止水条下需凿毛套浆处理,并与 地面做统一防水。止水条标高 应低于室内水平约10mm,门槛 石用专用粘结剂铺贴。
2、石材门槛与地板交接处留 3mm缝注耐候胶(颜色同地板或门槛石的色系)。
3、为避免门套受潮发霉,门套及门套线安装在门槛石上,门 套线根部留 3mm缝注耐候胶 (颜色与门套线同色系或按设 计要求)。
厨卫门套、门槛石安装示意图
▉ 重点说明:
1、门樘板下口做止水条,止水条
下需凿毛套浆处理,并与地面做 统一防水。止水条标高应低于室 内水平约10mm,门槛石用专用 粘结剂铺贴。
2、石材门槛与地板交接处留 3mm缝注耐候胶(颜色同地板或
门槛石的色系或按设计要求)。
3、门套线根部留3mm缝注耐候 胶(颜色与门套线同色系或按设
计要求)。
05 楼梯地面石材饰面示意图
楼梯地面石材饰面示意图
▉工序:
准备工作→弹线→检查编号→根据安装图试拼→基层处理→刷水泥浆结合层铺砂浆→刷 石材专用粘结剂→铺石材→灌缝、擦缝→ (瓷砖)晶面处理
▉ 重点说明:
大理石楼梯施工需按设计图纸要求于现场弹
线,线型及防滑条的形式需按设计要求施工。深色石材采用32.5MPa普通硅酸盐水泥混 合中砂或粗砂,(含泥量不大于3%)1:3 配比作结合层,刷石材专用粘接剂,铺贴石材。
06 石材加厚边施工示意图
石材加厚边施工示意图
▉重点说明:
为保证石材色彩、肌理的美观,台面加厚条与台面板同块料中切取,切割时应从背面向 上切割,背面与背面粘结,使得拼缝处密实。
07 地毯与踢脚线收口
地毯与踢脚线收口节点
▉工序:
基层处理→弹线、套方、分格、定位→地毯 剪裁→钉倒刺板挂毯条→铺设衬垫→铺设地 毯→细部处理及清理
▉重点说明:
地毯地面须采用水泥砂浆找平处理,待完全 干透后,方可铺设地毯。踢脚线根部需预留 8~10mm的缝隙(根据地毯的厚度),地毯胶 垫须符合室内环保及防火要求。
2地面地毯与石材拼铺界面节点
▉ 重点说明:
为使接缝处地面收口美观,地毯与大理石交接处采用 5~8mm厚×15mm高不锈钢收边处 理,不锈钢与石材用 AB胶粘结。
08 木地板铺装施工
▉工序:
基础清理→标高定位→套浆处理→细 石砼浇捣、找平→铺贴防潮膜→铺实木地板
▉重点说明:
1、地面找平后平整度需符合国家有关要求,
且达到一定的干燥度方可铺贴 (点击关注☞建筑10大技术类公众号) 。
2、基层板铺设时应在建筑地面上铺塑料防
潮薄膜,接口处互叠用胶布粘贴,防止水气 进入。
实木地板铺装示意图
▉ 工序:
放样→安装地垅→撒防蛀粉→安装防 潮多层板→铺贴防潮膜→铺实木地板
▉重点说明:
1、木地龙须采用松木类烘干处理(含水率符合当地湿度要求)及三防处理(防火、防 潮、防虫),规格不小于 50mm×30mm。采 用专用地垅美固钉固定,地面沿墙四周需用 木龙骨加固。
2、铺设12mm多层板,背面满涂三防涂料 (防火、防潮、防虫),规格为610×2440mm作 45 o工字法斜铺(自攻螺丝 固定)。
3、地板下需铺设防潮膜,接口处互叠用胶 布粘贴,防止灰尘、水气进入。
实木地板与踢脚线收口节点
▉工序:
放样→配料→工厂加工→现场施工安装
▉ 重点说明:
1、踢脚线要求工厂加工,现场安装,6m内不得拼接,接缝应留在活动家具等隐蔽部位。阴阳角需作45o拼接,采用卡式安装,不得在表面用qiang钉固定。
2、成品踢脚木皮厚度应不低于60C,油漆需符合环保要求。
3、成品踢脚背面必须刷防潮漆或贴平衡纸。
4、踢脚阳角收口应在工厂制作完成后现场安装。
5、踢脚应在墙面批灰打磨完成后安装。
6、地板与大理石围边、门槛石部位需留 3mm缝隙,并采用与地板同色系的耐侯胶填缝,墙体边沿(踢脚线内)预留 8~10mm伸缩缝。
楼梯地面木地板饰面示意图
▉工序:
放样→配料→基层板安装→面板工厂 加工→现场施工安装
▉重点说明:
1、楼梯实木踏板应工厂化加工(含水率应 符合当地的湿度),油漆面符合耐磨性要求,采用 AB胶与木基层板粘结固定,木基层板作三防处理(防火、防潮、防虫)。
2、楼梯踏板背面需用封底漆封闭,以防止 变形。
3、楼梯踏板收口线型应避免方角,以防止 使用磨损。
09 地面木地板与石材收口
地面木地板与石材拼铺节点(硬碰拼铺方式)
▉重点说明:
地板与大理石围边交接处预留 3mm地板伸缩缝,采用与地板同色系的耐侯胶填缝。为防止成品受污染及控制胶缝宽直度,打胶时需先用美纹纸定位。
工程项目经营管理是施工企业管理的重要组成部分,
地面木地板与门槛石界面收口节点
▉重点说明:
地板与石材围边交接处预留 3mm地板伸缩缝,采用与地板同色系的耐侯胶填缝。为防止成品受污染及控制胶缝宽直度,打胶时需先用美纹纸定位。
10 地面地胶板施工
▉重点说明:
1、基层应达到表面不起砂、不起皮、不起灰、不空鼓,无油渍,手摸无粗糙感。
2、基层与塑料地板块背面同时涂胶,胶面不粘手时即可铺贴。铺贴时,将气泡 赶净。块材铺设时,两块材料之间应紧 贴并没有明显接缝。卷材铺设时,两块 材料的搭接处应采用重叠法切割,一般 是要求重叠 3厘米,注意保持一刀割断。
3、为避免拼接缝的产生及存有卫生死角, 踢脚与地面连接处制作成内圆角或踢脚与地面整体铺贴
文章来源:鲁班施工
工程师必备
- 项目客服
- 培训客服
- 平台客服
TOP




















