最大实体要求如何在尺寸链中进行计算?
2022年12月30日 18:10按照几何公差与尺寸公差的有无关系,将公差原则分为独立原则和相关要求,其相关要求又分为包容要求、最大实体要求、最小实体要求、可逆要求。在之前的文章中我们讲到了独立原则和包容要求:戳以下链接可查看
下面我们来探讨一下最大实体要求。
图1 公差原则
最大实体要求是表明几何公差与尺寸公差相互关联,且当被测要素或基准要素偏离最大实体状态时,其几何公差能从尺寸公差中获得补偿的一种公差要求。最大实体要求适用于中心要素有几何公差的综合要求,既能用于被测要素也能用于基准要素,图样上标注符号“M”。
图2 应用于被测要素
图3 应用于基准要素
最大实体要求应用于被测要求
最大实体要求(MMR)是通过最大实体实效边界(MMVB)来控制被测要素的实际尺寸和几何误差,要求被测要素的实际轮廓不得超过其最大实体实效边界,且实际尺寸不得超出最大实体尺寸和最小实体尺寸。当实际尺寸偏离最大实体状态时,则允许几何公差增大,即得到尺寸公差的补偿,偏离多少补偿多少,最大补偿值为尺寸公差值。
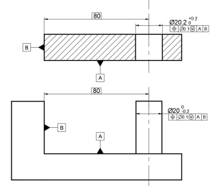
下面我们通过孔轴装配案例来进行分析,如下图所示,来计算基准面B处的间隙大小,分析孔轴零件是否能顺利装配。
孔、轴的被测要素均有最大实体要求,对于这种情形如何来进行尺寸链计算?首先我们分别对孔、轴零件的图样标注进行解析。
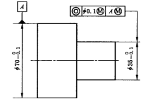
轴:
图4a 图示解释
图4b 动态公差图
孔:
图5a 图示解释
图5b 动态公差图
所以由最大实体要求的定义和动态公差图可知,最大实体要求应用在被测要素上,实际上是在一定范围内放松了对几何公差的要求,当被测要素偏离最大实体尺寸时,偏离的值可以补偿给几何公差。
在尺寸链计算时,由于几何公差有最大实体要求,会使得孔轴的边界尺寸发生变化,所以将几何公差叠加至尺寸公差进行尺寸链计算,下面我们利用专业尺寸链计算及公差分析工具(DCC)进行计算。
图6 尺寸链图
图7 孔最大实体要求
图8 轴最大实体要求
图9 计算结果
通过极值法计算得到间隙值X的范围为0~0.6mm,间隙值大于0,则表明两零件可以顺利进行装配。
前面我们通过一个案例讲了最大实体要求应用于被测要素的尺寸链计算,另外最大实体要求还可应用于基准要素,我们在下一篇文章中介绍。
往期推荐
工程师必备
- 项目客服
- 培训客服
- 平台客服
TOP




















