形位公差基准及运用
2024年3月4日 14:41基准是形位公差专有的东西,是公差标注的一个重要的升级。
没错,以前的线性公差是没有基准的,因为线性公差代表的是两个特征之间的距离。原因在于,没有基准的符号。
虽然线性公差在实际的运用中,大家都早早明白的基准的重要性,也有在运用基准的概念,但并没有归类成理论。所以这种线性公差有基准的概念是很暧昧的,哪怕是在尺寸链标注中。如下图:
虽然大家都知道轴端是基准,但也不是不能狡辩。但形位公差有了基准符号,就不一样了。任何人都能明白什么是基准。
这章就是专门讲述如何标注基准的。
一、基准定义
1 基准
与被测要素有关且用来定义其几何位置关系的一个几何理想要素(如轴线、直线、平面等);
可由零件上的一个或多个基准要素构成。
2 模拟基准要素
在加工和检测过程中用来建立基准并与基准要素相接触,且具有足够精度的实际表面。
3 检测示例
在加工和检测过程中,往往用测量平台表面、检具定位表面或心轴等足够精度的实际表面来作为模拟基准要素。
模拟基准要素是基准的实际体现。
二、类型
1.单一基准
一个要素做一个基准;
2.组合(公共)基准
二个或二个以上要素做一个基准;
3.基准体系
由二个或三个独立的基准构成的组合;
三基面体系 Datum Reference Frame — 三个相互垂直的理想(基准)平面构成的空间直角坐标系。见图21。
三、自由度与基准限制
一个物体有6个自由度。
1.基准限制自由度举例
①一个平面基准形体确定的模拟基准形体建立了一个基准平面,它限制了三个自由度(一个平移,两个旋转)。
②一个宽度的基准形体(两个对立的平行表面)确定的模拟基准形体建立了一个基准中心平面,它限制了三个自由度(一个平移,两个旋转)。
③一个球面的基准形体确定的模拟基准形体建立了一个基准中心点,它限制了三个平移自由度。
④一个圆柱的基准形体(两个对立的平行表面)确定的模拟基准形体建立了一条基准中心轴,它限制了四个自由度(两个平移,两个旋转)。
⑤一个圆锥的基准形体(两个对立的平行表面)确定的模拟基准形体建立了一条基准中心轴和一个基准中心点,它限制了五个自由度(三个平移,两个旋转) 。
⑥一个线性拉伸的基准形体确定的模拟基准形体建立了一个基准平面和一条基准中心轴,它限制了五个自由度(两个平移,三个旋转)。
四、三基面体系举例
1.板类零件三基面体系
2.盘类零件三基面体系
3.三基准体系结论
资料结论:
由上可知:三基面体系不是一定要用三个基准框格来表示的。对于板类零件,用三个基准框格来表示三基面体系;对于盘类零件,只要用二个基准框格,就已经表示三基面体系了。
上面是从三基面体系的原理来论述基准框格的表示数量。在实际使用中,只需能满足零件的功能要求,无需强调基准框格的数量多少。
作者结论:
就作者看来,正好反过来,从功能角度决定基准框的多少,若没有这个功能的要求,就不要多加基准而导致正确的零件被判错错误,降低良品率。
五、基准目标
用于体现某个基准而在零件上指定的点、线或局部表面。分别简称为点目标、线目标和面目标。
①点目标可用带球头的圆柱销体现;
②线目标可用圆柱销素线体现;
③面目标可为圆柱销端面,也可为方形块端面或不规则形状块的端面体现。
基准目标的位置必须用理论正确尺寸表示。面目标还应标注其表面的大小尺寸。
1.基准示例(图29)
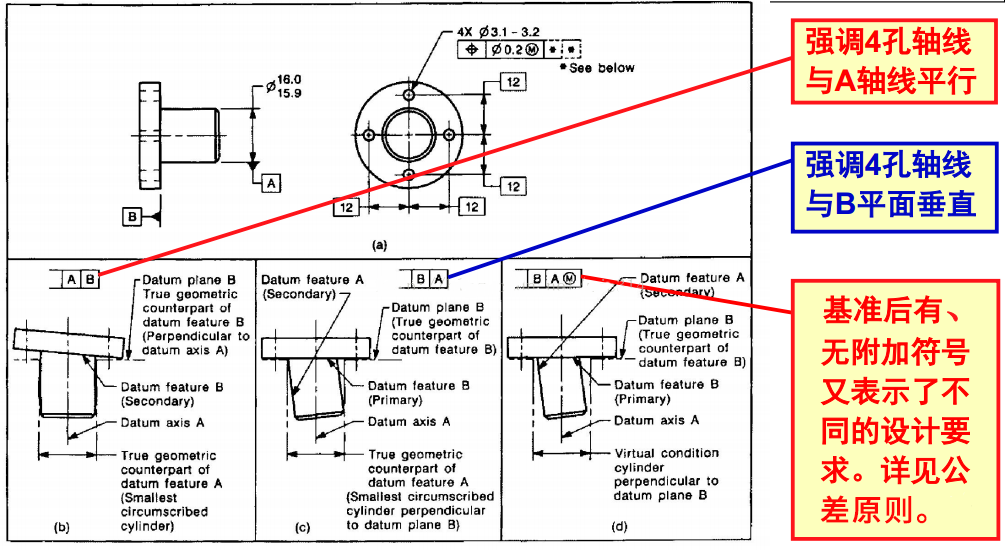
六、基准选取先后顺序
基准体系中基准的顺序前后表示了不同的设计要求。见下图:
七、基准的选择
1.考虑功能Function
•基准应该考虑选择在零件装配的配合面上;
•被选做基准特征的基准应该最小化装配偏差;
• 零件的基准应该能够代表实际零件的某特征关系。
2.考虑基准的可重复性Repeatability
•基准特征自身必须在制造过程中保持尺寸稳定;
•基准特征必须具有可重复性,不会因装配等而变化;
•基准平面应该对各种偏差不敏感。
3 考虑基准的一致性Coordinated
•建立的基准参考体系应该尽可能在零件的设计、制造、检验和装配过程中共用且一致;
4.结论
1)最终被选定的基准是综合考虑以上因素的结果
2)一个零件可能有多种定位方式
新书《尺寸链计算方法及案例详解》全网热销中。
工程师必备
- 项目客服
- 培训客服
- 平台客服
TOP




















