大底盘综合体结构设计

大底盘综合体结构设计
一、大底盘综合体类型分析
二、大底盘多塔结构设计要点
三、车库结构设计经济性控制要点
一、大底盘综合体的类型
根据车库层数及车库与主楼连接方式分为5种类型:
1、(与主楼断开)单层车库
★主要特点:
1、车库与主楼完全脱开,仅以通道相连。
2、车库和主楼各位单体,结构计算相对简单。
★设计注意点:
1、车库埋深大于主楼基础埋深时,应尽量使主楼外墙与车库外墙净距增加。如无条件时,车库与主楼间应设有效支护,并交代先施工车库后施工主楼,车库基坑开挖时不应使主楼基底土受到扰动。
2、【7度设防】车库一般为丙类建筑,抗震等级为四级。
3、7度Ⅰ、Ⅱ类场地丙类建筑不需进行地震作用计算。
4、中柱最小总配筋率应增加0.2%。
2、(与主楼断开)双层车库
★主要特点:
1、车库与主楼完全脱开,仅以通道相连。
2、车库和主楼各位单体,结构计算相对简单。
3、车库自重远不足以抗浮,车库底板配筋基本由水浮力控制。
★设计注意点:
1、设计前应摸清主楼边界与车库边界关系。
2、确定主楼基础埋深时,应考虑主楼与车库边界距离,保证施工的可行性。
3、注明基础施工顺序:先车库后主楼。
3、(与主楼相连)单层车库
车库与多栋主楼相连形成大底盘。
★设计注意点:
1、嵌固部位设在主楼地下室顶板时,应注意主楼顶板与车库顶板高差不能太大(最好≤0.8m)。
2、嵌固部位设在基底时,上部结构应按多塔模型复核构件配筋。
3、车库柱配筋应考虑0.2Q0剪力调整。
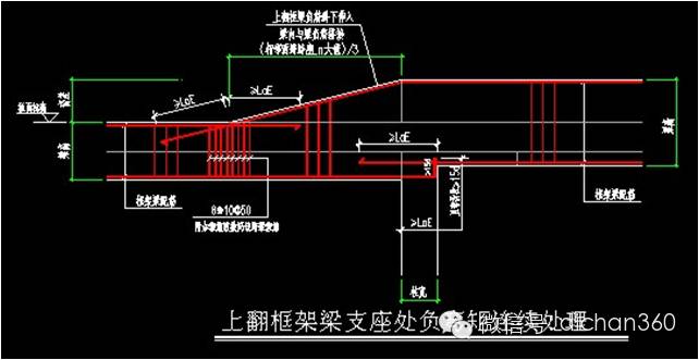
4、主楼顶板与车库顶板间应设加腋,便于传递地震力。
5、主楼相关范围内抗震等级应同主楼抗震等级
4、(与主楼相连)双层车库
双层车库与多栋主楼相连形成大底盘。
5、(地上一层、地下一层)大平台式车库
★主要特点:
1、车库分地下一层,地上一层。
2、地上车库周边一般设置沿街商铺。
3、小区景观设在地上车库顶板上。
4、主楼范围在地下、地上一层、大平台均有入口大堂。
5、主楼范围在大平台处底部架空。
★设计注意点:
1、为避免地面二层以上形成多塔结构,大平台层应合理分缝,分缝原则:避开景观水池、避开小区变用户变、防止塔楼偏置。
2、主楼剪力墙布置应充分考虑架空层及大堂的效果。
3、±0处楼板无覆土且不设缝形成超长结构,应采取防裂措施。
二、大底盘多塔结构设计要点
1、嵌固部位的位置与车库抗震等级的关联
a)主楼±0结构板作为嵌固部位时,主楼地下一层相关范围的抗震等级应按上部结构采用,地下一层以下抗震构造措施的抗震等级可逐层降低一级,但不应低于四级;地下室中超出上部主楼相关范围且无上部结构的部分,其抗震等级可根据具体情况采用三级或四级。
具体条文参见《高层建筑混凝土结构技术规程》第3.9.5条及其条文说明。此处“相关范围”一般指: 主楼周边1~2跨的地下室范围。
b)主楼基础底板作为嵌固部位时,车库除满足自身要求的抗震等级外,相关范围的抗震等级不应小于主楼的抗震等级。
具体条文参见《高层建筑混凝土结构技术规程》第3.9.6条及其条文说明以及《建筑抗震设计规范》第6.1.3-2条及其条文说明。此处“相关范围”一般指:主楼周边外延3跨且不小于20m。
图例一:
图例二:
图例三:
2、计算模型与构件设计的对应关系
A)主楼嵌固部位设在±0结构板时
a)计算模型一 主楼上部结构配筋设计
主楼可仅建至±0结构板,定义无地下室,嵌固层号输入值为“1”;
也可将主楼地下室建进去,嵌固层号输入值为“2”。
单体总信息等由该模型输出,上部结构构件均按模型进行配筋设计。
b)计算模型二 主楼基础--地下室顶板构件设计
主楼建至地下室,主楼周边各延一跨到两跨,定义地下室,嵌固层号输入值为“2” 。
主楼嵌固端剪切刚度比值由该模型输出;
主楼桩基、底板、柱墙、梁等构件按该模型进行配筋设计;
注意:
外带裙房部分梁、柱配筋值可能会失真,打印计算书时可将配筋值删掉。
c)计算模型三 (多塔模型) 车库板、梁、柱配筋设计
拼多塔模型时不应采用广义层,底层层高按车库层高输入;
注意对车库框柱进行0.2Q剪力调整;
车库抗震等级按车库确定,与主楼相邻一跨至两跨抗震等级同主楼(特殊构件定义)。
车库梁、柱、板均按该模型进行配筋设计。
d)计算模型四 (基础正算模型) 车库基础配筋设计
为提高计算效率,塔楼层数可仅建5~6层;
主楼与车库交接部位布砼墙作为车库底板支座;
消防车均布荷载可按节点荷载直接加至框架柱,原消防车道区域活载改为4.0
(更加符合车库基础受力实际情况);
打印车库底板计算书时把主楼范围计算结果删除。
车库底板、柱帽均按该模型进行配筋设计。(正算)
e)计算模型五 (基础反算模型) 车库底板水浮力复核
当基础正算模型底板标准组合反力小于水浮力时,需用计算模型五反算,取正算与反算的
包络值进行底板配筋设计。
B)主楼嵌固部位基础底板时
a)计算模型一 主楼构件设计(含基础、上部结构)
主楼建至地下室,主楼周边各延一跨到两跨,定义地下室,嵌固层号输入值为“1” 。
单体总信息等由该模型输出,基础、上部结构构件均按模型进行设计;
主楼上部结构配筋应根据多塔模型复核;
注意:
外带裙房部分梁、柱配筋值可能会失真,打印计算书时可将配筋值删掉。
b)计算模型二 (多塔模型) 车库板、梁、柱配筋设计及主楼上部结构配筋复核
拼多塔模型时不应采用广义层,底层层高按车库层高输入;
注意对车库框柱进行0.2Q剪力调整;
车库抗震等级按车库确定,与主楼相邻三两跨且不小于20米范围抗震等级同主楼
(特殊构件定义)。
车库梁、柱、板均按该模型进行配筋设计。
c)基础正算模型与反算模型同前。
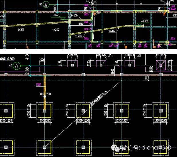
3、车库顶板模板设计要点
A)车库顶板模板绘制需考虑因素
❶板面标高关系
❷主楼与车库边界梁、柱布置
❸车库顶板上小区变位置与车库柱网关系
❹采光井、出地面机房通风井
❺车库顶板上景观水池对车库抗浮的不利影响
❻汽车坡道、自行车坡道、出地面楼梯结构布置
❼沉降后浇带、温度收缩后浇带的合理布置
B)车库顶板设计注意点
❶消防车道、消防登高面区域在模板图上必须表示清楚,“附注”中应注明
❷对车库顶板覆土压重提出要求
❸车库顶板上翻梁单独设置图层,上翻梁布置应反提给建筑专业,建筑在顶板排水设计时需考虑上翻梁的影响
4、车库基础底板模板设计要点
❶柱墩尺寸根据柱网尺寸合理取值,一般为0.3~0.35L;如8.1米柱网,柱墩尺寸一般取2.7米。
❷汽车内坡道压重缺失,应考虑整体抗浮。
❸主楼厚筏板与车库薄板交界处构造加强
❹沉降后浇带构造特殊处理 -------用于砼外墙
❺沉降后浇带构造特殊处理-------用于底板
❻车库结构构件混凝土标号应重点说明
❼基坑回填要求
❽与主楼相连的车库基础等级及桩基等级
《建筑基底基础设计规范》及《建筑桩基技术规范》中“层数相差超过10层的高底层连成一体建筑物”为甲级。
审图中心一般认为与主楼相连的车库基础等级及桩基等级均为甲级。
设计时应注意:
★ 车库如设抗拔桩,必须有设计试桩;
★ 必须进行车库沉降计算;
❾主楼基础及桩基计算时活荷载折减注意点
★SATWE信息中“传给基础的活荷载折减”对JCCAD中基础计算无效;
★基础活荷载折减系数必须在JCCAD的“荷载组合参数”中输入;
★JCCAD“荷载组合参数”中不能勾选“自动按楼层折减活荷载”,可以直接在“活荷载按楼层折减系数”中填写折减系数。
三、车库结构设计经济性控制要点
1、地下车库建筑经济性控制
a)停车位数量由小区总户数确定,地下车库每平方米土建造价约2000元,在保证停车位数量的前提下,每个车位所摊的面积越少,成本就越低。一般来说,不含主楼地下室面积的情况下,单车位所摊面积为28个平方;含主楼地下室面积时,单车位所摊面积为31~32个平方。
b)地下车库的档次与小区的档次相关,对于豪宅级别的,地下车库采用大柱网、大层高;对于一些刚性需求的住宅,地下车库可采用小柱网、低层高。
c)柱网8.1mx8.1m、层高3.9m车库,含钢量约为110~120Kg/m2;
柱网5.0mx6.0m、层高3.2m车库,含钢量约为92~96kg/m2。
以上数据建筑面积均不包括主楼地下面积,均为非人防情况。
2、车库含钢量分析
常州金地3#地块一期车库含钢量分析
基本情况
非人防普通地下室
标准柱网:8.1x8.1
层数:地下一层
层高:3.9m
建筑面积(主楼除外):13837平方
含钢量:110Kg/m2
3、地下车库结构经济性控制要点
❶主楼基础及桩基
•主楼布桩原则:尽量墙下布桩,当桩不能完全墙下布时,在满足桩间距要求的前提下,尽量靠近墙下布置,减小传力途径。
•主楼底板:主楼底板满足一定刚度要求的前提下,板厚尽量减薄,通常配筋率按0.15%控制,局部不足处设加筋。同时严格控制筏板挑边宽度,最大限度减少筏板面积。
❷单建地库筏板
•基础形式:采用筏板+下柱墩(无梁楼盖+柱帽)形式,传力直接均匀,经济性好,方便施工。
•选择合理的底板及柱墩厚度:底板的配筋率按最小0.15%控制,柱墩配筋率控制在0.15%~0.25%。柱墩的尺寸按照筏板有限元计算情况,控制在35%柱网尺寸以内。
•底板水反力计算时:采用抗浮水位进行承载力计算,按常年水位验算裂缝。
•基础尽量减少外挑,以减少土方开挖量。
❸框架柱及地下室外墙
•合理控制框架柱轴压比,保证计算结果均为构造要求,降低含钢量;
与地下室外墙相连的框架柱箍筋不必全高加密;与主楼相邻一跨的框架柱箍筋不必全高加密
•根据地下室层高及水位,合理确定地下室混凝土外墙厚度;
按抗浮水位进行承载力计算,按常水位进行裂缝验算;
地下室外墙计算模式:与底板相连一端按固定支座,与顶板相连一端介于铰接与固端之间,计算时可根据情况附加有利弯矩,降低外墙底部及跨中弯矩;
外墙配筋设计时,通长筋选取小直径钢筋,根部不足处另设加筋;
外墙水平分布筋满足0.15%的配筋率即可。
❹车库顶板
•消防车荷载:考虑轮压在覆土中的扩散影响,按板块的不同分别计算等效荷载;
•顶板按防水规范要求最薄250mm控制,充分发挥其承载力;小柱网车库尽量不设次梁;大柱网车库根据板跨合理布置次梁降低板配筋量;
•配筋均采用通长筋+附加筋,部分通长筋考虑抵抗混凝土收缩变形;
•局部跨度较大或荷载较大处板块再根据实际情况适当加厚 ;
•计算板的裂缝时,考虑板支座处梁宽的刚域作用 。
❺车库梁配筋
•在梁配筋计算时,消防车道及登高面处或荷载应按0.8系数折减;
•对跨度或荷载较大的梁,结合通风专业风管图,梁高能利用设备层无风管处的空间,控制梁配筋;
•尽量控制梁支座配筋率<2.0%(纵筋配筋率超2.0%时梁箍筋直径要加大一级);
•在满足梁上下截面配筋比值的前提下,架立筋采用小直径钢筋;
•梁宽尽量控制在300mm及300mm以内,减少箍筋用量;
•梁腹板高度hw尽量控制在450mm以内,可不设腰筋;
•对于350mm、400mm、450mm宽的梁,在满足计算要求的前提下可采用3肢箍;
•非加密区箍筋间距在满足计算要求的前提下可采用非标间距,如120、140、160、180等。
工程师必备
- 项目客服
- 培训客服
- 平台客服
TOP




















