随着汽车在中国的普及率逐年攀升,目前配置有天窗的车型达到50%以上,一线合资品牌车型天窗配置比为60%左右,高端品牌的天窗配置甚至达到100%。汽车天窗种类繁多,包括:内藏式、外滑式、外开式、固定玻璃全景式、折叠式等。随着汽车消费群体的年轻化及个性化,全景式天窗越来越受到消费者的青睐,天窗做的越大钢材利用率就越低。本文通过对某车型天窗安装板材料利用率低、生产工艺繁琐的问题进行分析,并针对如何通过使用激光拼焊工艺来提高材料利用率及降低生产成本的解决方法进行讲解。
随着汽车竞争日益白热化,产品低成本高质量是保证汽车企业生存的基本要求,更是企业技术实力的体现,每个开源节流的成本收益都会对企业的效益产生较大影响。冲压需求的成品板料开卷方式一般分为四类:横剪、摆剪、落料和激光拼焊板。横剪一般为矩形板料,摆剪一般为梯形板料、落料是通过落料模生产出来的异形板料,激光拼焊可以将同牌号同厚度、同牌号不同厚度、不同厚度不同牌号及规格不同的钢板拼焊在一起来满足冲压生产需求,一般冲压生产只采用一种开卷方式即可满足冲压生产的需求。
现有工艺介绍
某车型在设计初期全系采用全景天窗以应对市场需求,安装天窗玻璃的天窗安装板在模具设计开发及现生产阶段的生产工艺为:从钢厂购买原卷发往剪配加工中心进行摆剪(梯形板料),摆剪板料送到冲压厂后在进行落料生产,如图1 所示。
此种工艺在拉延工序生产前材料利用率就下降到65%,在经过后序分离工序加工后导致材料利用率只有24%,远远低于此款车型的平均材料利用率。
废料再利用
为提高材料利用率对落料产生的利废料片尺寸测量,通过与此款车型其他零部件的消耗定额进行排查,左右大灯上横梁的牌号最为接近。经过CAE 分析及现场生产调试,制件单件性能及生产无问题,通过搭载强化路试确认此方案可行。在天窗安装板利平料生产大灯上横梁后材料利用率由24%提高到了32%,单车原材料需求减少4.3kg,如图2 所示。
激光拼焊工艺应用
通过废料再利用,天窗安装板的材料利用率由24%提高到了32%,由于利平料只能使用3/5 的面积,剩余的板料还是废料。为进一步提升材料利用率,通过此车型其他制件激光拼焊工艺应用及对落料片进行分析发现,落料后的成品板料中间为一个近似于矩形的孔,此落料片可以使用两张矩形板料和两张梯形板料直接拼接而成。
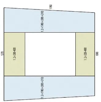
对拉延模凸模和压边圈尺寸进行分析测量,在保证外轮廓尺寸不变的前提下,最终确认由四块尺寸分别为1780×(305+210)×2+660×300+325×660 的板料拼焊而成,如图3 所示。
天窗安装板激光拼焊板方案及尺寸确认后,通过CAE 软件进行分析确认,此板料可以满足生产需求,制件状态满足产品设计性能要求。将相关数据发给激光拼焊厂家进行确认,厂家可以满足此方案生产,并提供30 台份激光拼焊板调试板料进行生产验证。激光拼焊板板材到货后安排压机进行调试,调试时OP10 拉延内侧四个角产生开裂,原因为内侧四个角焊接后为直角,在拉延走料过程中撕裂,此四处开裂消除不掉,通过现场调试可以将开裂部位控制在废料区内,如图4 所示。

图1 某车型天窗安装板生产工艺
成品制件出来后,上检具对天窗安装板激光拼焊板成品制件进行检测,三组制件符合率分别为96%、96%、97%。与质量工程师现场对制件质量状态进行确认,制件质量状态与OTS 封样件差异不大,随即组织相关人员进行试装验证工作。通过焊装现场焊接与总装装配,天窗安装板使用激光拼焊板与正常板料生产制件装车状态一致,通过试装验证并出具试装验证合格结论报告。
通过天窗安装板激光拼焊板的应用,取消了摆剪和落料工艺,由拼焊厂家直接提供拼焊后的成品板材。材料利用率由最初的24%提高到现在的40%,材料利用率提高了16%,单车原材料节约7.1kg。

图2 废料再利用

图3 板料拼焊尺寸

图4 OP10 拉延开裂(左)、开裂位置对比(右)
结束语
目前此方案在公司内部未有使用先例,后期新开发车型可借鉴此工艺降低模具开发费用并同时在公司内部推广。创新带来收益,敢于创新带来突破,改善思路,不局限于眼前,遵守PDCA 循环,多提几个为什么,不断进行改进会有新的结果。

靳五令
主要从事冲压工艺现场管理、项目阶段模具验收及回厂后精度恢复、车身金属消耗优化维护提升等工作,参与并完成了CX62/KX63 两个整车项目冲压件验收及精度恢复工作、完成CX62/KX63 改款项目模具验收及精度恢复工作。