低压总断路器的短路保护需要如何整定,才能避免出现越级跳闸呢?
2021年6月16日 11:59民用建筑中,10/0.4kV变电所的低压总断路器的短路保护需要如何整定,才能避免出现越级跳闸呢?低压总进线断路器通常都带有三段保护功能,即过载长延时(L)、短路短延时(S)和短路瞬时保护(I),那么当下级某个出线回路出现三相短路时,低压总进线断路器的短路瞬时保护(I)会不会出现越级跳闸,即下级出线回路的三相短路电流较大,超过了低压总进线断路器短路瞬时保护(I)的整定值。
低压总进线断路器瞬动脱扣器越级动作而使其短路短延时(S)不起作用,这样将导致大面积停电,从而引起较大停电事故。下面就针对小编设计过的一个10/0.4kV变电所进行分析,看看是否会出现越级跳闸的情况?
(1)选用消防泵出线回路进行三相短路电流的计算
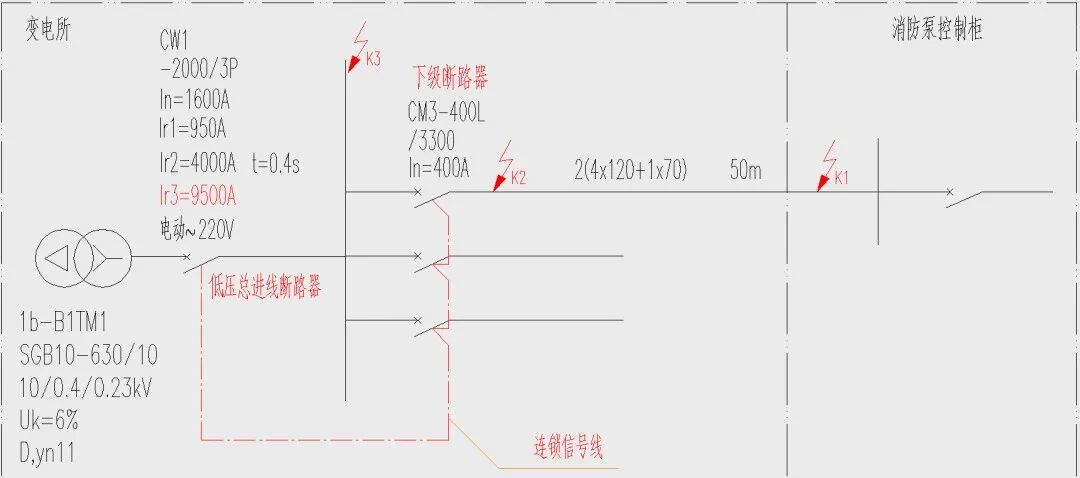
本次选用某住宅工程10/0.4kV变电所的消防泵回路在变电所低压柜内和消防泵控制柜进线处发生三相短路的情况进行计算,该变电所变压器容量为630kVA,低压总进线断路器短路瞬时保护(I)整定为9.5kA,其下级消防泵回路断路器短路瞬时保护整定值为4kA。
变电所配电系统简图如下:
变电所配电系统简图(一)
1)变压器阻抗:
S=630kVA,RT=2.56,XT=16.45;
2)低压总断路器至消防泵出线回路的铜排[TMY-3(80x8)+(50x5) ]的阻抗:
L1=5m;R 1= 0.05 x 5=0.25mΩ;X1= 0.17 x 5 = 0.85mΩ;
3)变电所至消防泵控制柜段电缆[ 2(4x120+1x70) ]的阻抗:
L2=50m;R 2= 0.5 x 0.146 x 50=3.65mΩ;X2= 0.5 x 0.076 x 50=1.9mΩ;
4)消防泵控制柜进线处(K1处)发生三相短路时短路电流:
线路总电阻:R K1= RT + R 1 + R 2 =2.56+0.25+3.65=6.46(mΩ)
线路总电抗:XK1= X T + X 1 + X 2=16.45+0.85+1.9=19.2(mΩ)
线路总阻抗:ZK1= 20.26 (mΩ)
K1处三相短路电流:Ik3=1.05 x 380 / 1.732 / 20.26=11.37 (kA)
5)变电所低压柜的消防泵出线处(K2处)发生三相短路时短路电流:
线路总电阻:R K2= RT + R 1 =2.56+0.25=2.81(mΩ)
线路总电抗:XK2= X T + X 1 =16.45+0.85=17.3(mΩ)
线路总阻抗:ZK2=17.5(mΩ)
K2处三相短路电流:Ik3=1.05 x 380 / 1.732 / 17.5=13.16(kA)
6)校验:
由以上计算可知,消防泵回路在(K1或K2处)出线三相短路时,其三相短路电流K1处 (11.37kA )和 K2处( 13.16kA)均已超过变电所低压总断路器的整定电流9.5kA,在K2处发生短路的短路电流(13.16kA / 9.5kA=1.39)已经超过整定电流9.5kA的1.3倍,这都将可能引起低压总进线断路器的越级跳闸。
(2)针对低压总进线断路器可能产生越级跳闸而采取以下两种措施来避免
1)低压总断路器整定过载长延时(L)、短路短延时(S),而取消短路瞬动脱扣
低压总进线断路器取消短路瞬动保护(I),这种方法虽然可以避免越级跳闸,而只能靠短路短延时(S)脱扣来切断短路电流以保证选择性,但是线路短路持续时间的延长使得为保证线路的热稳定而增大线路截面积,且在K3点发生短路时,如果短路短延时(S)万一因某种原因而拒动,将会产生严重后果,并不太理想。
2) 采用智能型断路器,利用其ZSI(级间选择性连锁技术)来保证上下级断路器的选择性
变电所配电系统简图(二)
如上图中,低压总进线断路器与其下级断路器采用智能型断路器(带ZSI功能),并在它们之间敷设一信号控制线。当K1或K2点出现短路时,图中标注的下级断路器检查出短路电流,它同时向低压总进线断路器发出连锁信号,使低压总进线断路器锁定瞬动脱扣,而只剩下0.4s的短路短延时动作,而下级断路器本身未自锁,可以瞬时动作,从而避免了越级跳闸的大面积停电事故。
而当K3处发生短路时,低压总断路器并未接到下级断路器发来的连锁信号,它可以立即动作,这样即可以及时地切断短路故障,有效地保护了导体,也可减少导体的截面积,因此低压总进线断路器仍然具备短路短延时(S)和短路瞬动保护(I)这双重保险,应更合理可靠。
(3) 总结
综上所述,在设计10/0.4kV变电所系统时,其低压总进线断路器的短路保护整定推荐采用以上第三节的第2种方案,即采用智能型断路器,通过其自身带的ZSI功能(或者增配)来实现上下级的选择性跳闸的短路保护,这样做就不需要为保证热稳定而加大回路截面积,就可以保证短路防护的选择性,防止低压总进线断路器出现越级跳闸的风险,使得设计更加合理。
转发到朋友圈是对小编最大的鼓励!
来源:网络,版权归原作者所有
工程师必备
- 项目客服
- 培训客服
- 平台客服
TOP




















