铝木结合施工工艺示例,提质增效!
2021年7月29日 14:25来源:南通二建集团技术服务平台
如有侵权,请联系删除
正文如下:
非标准层与标准层交接的位置,存在与标准层节点不同的地方,若全部使用铝模成本较高,周转率低下。因此非标准层施工,采用铝合金模板结合木模板工艺,确保大部分结构成型效果达到铝模施工高精度、高质量,又能节约成本,同时也能保证施工节点一次性施工完成,不至于二次施工,从而保证施工质量。以下内容基于南通二建集团天境碧桂园项目作为参考依据,阐述铝木结合施工工艺。
本项目由30个单体组成,层数为6-26层不等,同户型洋房、高层由六套铝模进行周转使用,铝模使用楼号为12栋。本项目洋房首层层高均为2.94m,洋房及高层顶层层高均为3.01m,而标准层层高均为2.9m。采用铝木结合的位置主要在首层门厅墙体、每层楼梯梁、二层、六层阳台装饰梁、电梯井以及首层、顶层墙体部位。
施工原理
采用标准层铝模作为基础模板材料,辅材为木方,加固仍按照铝模加固体系不变。
节点做法
工艺要点
根据施工图纸做法,施工首层结构时,在墙体根部加设4cm高的木方,木方既能作为根部堵缝处理,同时也能抬高本层层高,加固方式和标准层相同。
首层根部加设4cm木方砼墙体成型效果
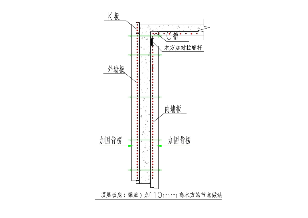
在施工顶层结构时,由于梁高和门与地面做法的关系,只能在顶部加设木方,加固过程中墙体模板与C槽之间采用对拉螺杆固定木方,使之固定牢固,同时,为了保证层高的要求,可以在木方外侧加定型模板,更好的控制层高。
梁顶部铝模结合木模加固
梁顶部加设10cm木方后砼梁成型效果
在施工楼梯梁或者局部造型梁等部位时,一侧采用木模板、另一侧采用铝模板,当梁较小时可采用螺栓加固,梁较大时可以采用对拉螺杆的加固方式。
楼梯梁铝木结合砼成型效果
在施工电梯井部位,本项目电梯井内模采用整体木模板,吊装方便,外模采用铝合金模板,加固时让铝模与木模的螺栓孔对齐,按照铝模加固方式加固,遇到铝模与木模在同一侧时,木模板内可以加钢板使之与铝模板厚度保持一致,墙体加固方式与之前的相同。
电梯井内侧采用铝木结合的加固方式
电梯井内侧铝模结合砼效果
以上几个部位的铝木结合做法,在本项目得到了很好了应用,并且效果甚佳。此类施工方法在实际应用中比标准层施工时间相对增加1天,但属于正常施工时间,施工过程连续,不影响关键节点,技术劳动方面不需要另外增加其他专业劳务人员,在施工交底过程完成后就可以施工,技术方面没有难度,实际应用方便,就地取材。适用于项目单体多的同户型的别墅、洋房、小高层、高层等。
工程师必备
- 项目客服
- 培训客服
- 平台客服
TOP




















