齿环类锻件自动化锻造生产工艺开发
2022年5月30日 14:06本文以武汉新威奇科技有限公司为客户实际设计的锻造自动化生产线为案例,针对中、小型环类锻件的自动化锻造工艺开发流程进行介绍,分析了中、小型环类锻件精密模锻的锻造工艺,以及适用于自动化生产的设备选型及模具设计,并验证了此种工艺的可行性,最终锻造自动线获得客户认可。
锻件工艺分析及工艺路径的制定
齿环(中间轴)类锻件属于工程机械类锻件,锻件材质20CrMnTi,锻件外圆直径408mm,内孔直径250mm,锻件高50mm,锻件重量24.2kg。锻件示意图如图1 所示。锻件复杂系数CV=0.47,CA=45.7,CA 值较大,模锻时需转移的金属量较大,成形时所需要的力和能量都较大,成形具有一定难度。
图1 齿环类锻件
目前一些厂家的常规锻造工艺路线为:下料→加热→镦粗→成形→冲孔,冲孔后的连皮质量约7.5kg,材料利用率仅75%。为适应节能减排需求,选用辗环制坯后锻造工艺,详细的工艺路线为:下料→加热→镦粗→挤孔→冲孔→辗环→锻造成形,工步图如图2 所示,此方案连皮质量约2kg,材料利用率可达到90%,且大大减小了锻造成形时锻件的投影面积,从而减小锻件的终锻成形力。
图2 常规锻造工步图
齿环类锻件自动化锻造工艺的设计流程
采用逆向设计的方式,根据客户提供的机加工零件图,来设计锻件图,从而设计出制坯图,并且可根据设计的图纸及要求来对设备进行选型,然后可根据设备的类型来设计出相应的模架和模具,采用逆向的设计方式来一步步的制定齿环类锻件自动化的锻造工艺过程,设计流程图如图3 所示。
图3 设计流程图
自动化锻造工艺方案
此锻件的锻造线较长,锻件较重,综合考虑人员安全、生产节拍及产量的问题,因此采用自动化锻造线来代替常规的人工操作锻造线。为适应自动化锻造的要求,各单元设备必须具备自动化生产能力,传统的空气锤制坯及液压机自由锻制坯将无法满足要求。因此将根据自动化生产工艺要求采用逆向设计思路选择设备型号、制定工艺参数。
终锻工艺的制定及设备的选取
根据终锻毛坯定位需求,有内径定位及外径定位两种方式,对两种方式进行有限元模拟分析,选取合适的终锻毛坯定位方式以及锻造设备。
模拟参数选取,模具温度250℃,坯料温度950℃,外界环境温度25℃,坯料和环境的对流热交换系数0.02N/(sec·mm·C),热交换面为环境与坯料的外表面,坯料和模具的热传导系数0.2N/(sec·mm·C),建模示意图如图4 和图5 所示。
图4 内径定位
图5 外径定位
内径定位结果分析:靠内孔定位,内孔会出现纵向毛刺,最大外径处的圆角不易充满,锻件底面存在产生折叠的风险,锻造成形力5500t,成形能量600kJ。
外径定位结果分析:靠外孔定位,金属流动良好,锻件不会产生折叠,锻造成形力6000t,成形能量520kJ。
综上所述:根据成形力与能量要求选择在J58K-4000 电动螺旋压力机上进行锻造成形(电动螺旋压力机打击力可长期超载1.6 倍)。终锻毛坯选择外径定位方式。
辗环扩孔工艺制定及设备的选取
毛坯采用外径定位后可设计出辗环后的制坯图,根据辗环要求我们可以确定出辗环前的毛坯尺寸,即为冲孔后的制坯图。辗环后的最大外圆尺寸小于408mm,因此选用D51K-500B 数控立式辗环机(最大外圆可辗到500mm)。
冲孔、挤孔和镦粗工艺制定及设备的选取
同样根据冲孔后的制坯图,可以设计出挤孔制坯图,再根据质量守恒可算出镦粗高度,镦粗尺寸得以确定。经过DEFORM 模拟软件的模拟分析,算出镦粗力450t,挤孔力1800t,冲孔力400t,可以选择一台设备做三工位制坯,这样既节省了成本也节省了场地的空间,综合考虑液压机的吨位及工作台面的大小,所以选取2000t 液压机做三工位制坯。
加热和下料工艺制定及设备的选取
根据中频炉选型规则,可以按产品重量和产能选择合适功率中频炉。重量较大的棒料一般采用下料锯床与中频炉直接连线的方式,保证中频炉供料的稳定性,可根据棒料直径及生产节拍选择合适的中频炉。最终工艺及设备选型见表1。
表1 工艺及设备选型
模具模架的设计
2000t 液压机三工位模架模具的设计
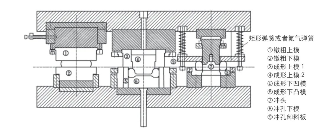
液压机三工位制坯模架结构设计如图6 所示。
图6 三工位制坯模
三工位模具难点在冲孔工位的卸料,冲孔的卸料结构采用上卸料,这样使锻件留在下模统一的位置,便于机械手的夹持。卸料弹簧可选用常规的矩形弹簧或者氮气弹簧,矩形弹簧的好处是相对来说耐高温,但提供的卸料力有限,所需的卸料行程较大。氮气弹簧可提供较大的卸料力(单根可选择弹力6t到10t的,且初始弹力6t)。
4000t 终锻模架模具的设计
终锻模架模具结构设计如图7 所示。
图7 4000t 电动模架模具结构
终锻设备采用的是4000t 电动螺旋压力机,此压力机的优点是打击能量可控,设备自带液压三点顶料系统,锻件的顶料采用环形结构,设备自带的三点顶料为十字形状的顶料板,顶料结构适应性强,适用于不同直径环件。
生产验证
图8 为辗环前三工位制坯得到的环形件毛坯,图9 为辗环扩孔后得到的毛坯,图10 为终锻成形后得到的成品锻件,锻件成形良好,未出现折叠。量产后,锻件后续机加工达到预期目标,图11 为机加工后产品。
图8 辗环前三工位制坯得到的环形件毛坯
图9 辗环扩孔后得到的毛坯
图10 终锻成形后得到的成品锻件
图11 机加工后产品
总结
本文针对环类件,详细的讲述了武汉新威奇科技为客户设计开发环类锻件自动化锻造过程的工艺开发流程,即设计阶段从产品图纸开始逆向工艺设计及设备选型,实际生产通过了对此方案的验证,总结出了一种锻造环类件的自动化锻造工艺设计方法。对锻造业同行以后此种类型锻件的自动化生产方案设计具有很大的参考价值。
工程师必备
- 项目客服
- 培训客服
- 平台客服
TOP




















