关于深基坑计算的几点思考(一个实际项目的总结)
近一月水哥被一下穿道项目折磨的体无完肤,一来从未认真的接触过深基坑,二来本人实在对基坑支护这块不感兴趣,但无奈这个项目分到头上了,只有硬着头皮从头开始接触深基坑,所幸历经一月之久,假日临近,这个项目也终于走向了尾声,今日水哥就简单总结下该项目。
项目概况:
本项目下穿重庆主城区一主要快速路金兴大道,位于高填方区,整个下穿道呈弧形,长度约为84m。总平面图、地质纵断面图以及结构断面尺寸图如下:


本项目虽体量较小,但难度较大,主要难点如下:
一、交通导改
此地区原地形是一个沟壑河谷,后为修建金兴大道,形成了高约40米左右的边坡, 因而施工范围内,现有交通不能导改至两侧,只能利用现有人行道宽度进行局部导改,综合考虑比较,本次采用盖挖法解决此问题。
二、管线改迁
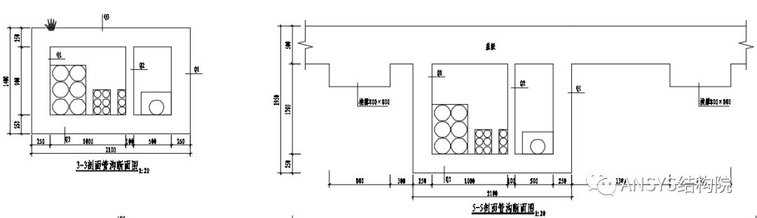
金兴大道两侧管线密集,种类多样,其中更有重力式管类,为切实做好管线改迁工作,本次特意修筑迁改管沟,在下穿道范围之外,采用闭合箱形结构,在下穿道范围之类,通过挂板方式解决。管线平面图如下:

管沟盖板范围内与盖板范围外的截面如下:

三、填土区深基坑支护
这也是本文重点总结内容,本项目基坑开挖深度最深处约为18米,且处于高填方区,工程风险较大。本次支护采用围护桩+内支撑的支护形式,首道撑采用钢筋混凝土横撑,二、三道采用钢支撑,换撑采用钢支撑。
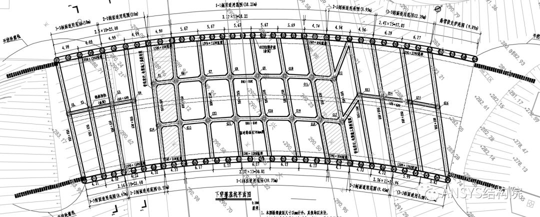
结构基坑总平图如下:

第二、第三道钢支撑平面布置图:

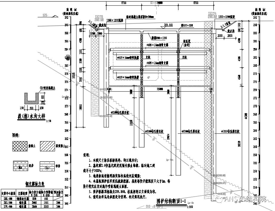
基坑支护典型断面:

支护立面图

支护设计参数:
1)围护桩直径1.2m@2.5m;
2)冠梁:1.2mx1.2m
3 ) 混凝土横撑0.8mx1.2m,混凝土系梁0.6mx0.6m,横向间距6m
4)钢支撑:采用609钢管,壁厚16mm;横向间距3.5m,竖向间距4.5m
5)格构柱:L200x20
6)格构柱基础:直径1.2m钻孔灌注桩
本次深基坑计算采用理正深基坑7.0进行,现对其中的一些参数和步骤略做总结,供朋友们参考,若有不妥之处,欢迎批评指正。
(1) 关于深基坑支护结构安全等级的说明

基坑安全等级需根据周围的情况来综合定夺,当基坑开挖范围内有重要建筑物时,一般需严格控制基坑变形,这时候取安全等级为一级。安全等级直接影响的结果为坑底抗隆起稳定性,特别是当坑底具有软性土,需要考虑以最下层支点为转动轴心的圆弧条分法时,安全等级影响较大。
(2)如何模拟桩顶放坡的情况
理正深基坑可以通过降低桩顶标高来模拟实际工程中桩顶放坡的情况,柱顶标高填负数,值为需要开挖的深度,放坡级数控制放坡的台阶数,在坡号下面则可填写每段坡的信息,例如放坡坡率等。

(3)冠梁水平刚度计算
理正里面计算冠梁的水平刚度其实是错误的,这里不做讨论。先看下理正计算冠梁刚度的模型。

这里计算长度L可取支撑水平间距,a取计算桩中心到支撑点的距离,一般取一半,因为此时计算的刚度是最小的,偏保守。
理正冠梁计算模型是在支护桩冠梁位置处增加一个弹簧,弹簧的刚度就等于冠梁的水平刚度,其计算方法是利用如下模型按照结构力学公式计算而来。

但值得注意的是,冠梁对于支护结构的作用很有条件的,也即冠梁刚度是否起作用关键是看冠梁两端是否有有效的约束,保证冠梁两端基本上不发生向坑内的位移,若不能保证,也即是不能保证冠梁计算模型的边界条件,此时冠梁水平刚度应为0!
(4)支撑材料抗力的计算
材料抗力计算公式如下:

轴心受压构件稳定系数可按混凝土规范和钢结构规范计算。工程中偏保守取法为计算值的0.8倍。
(5)支锚刚度的计算
支锚刚度直接影响基坑支护的变形,理正计算公式如下:

其中弹性模量、支撑面积以及计算长度需根据实际情况输入,注意在计算钢支撑的时候弹性模量的输入,单位为10^4Mpa,钢支撑输入时应输入20,比混凝土大一个数量级。
(6)钢支撑预加力的施加
为了控制基坑变形,我们需提前对钢支撑预加力,按规范要求,一般不应低于材料抗力的80%,但实际上,若如此施加,会导致钢支撑内力的急剧增大,一般而言,施加200~300KN是比较合适的。

(7)支撑间距的拟定
支撑间距并无规范要求,但按经验来讲,混凝土支撑间距一般不应小于6m,不大于9m。钢支撑间距一般为3m左右,不应小于2m,否则会造成预加力施工时施工困难。竖向间距一般应能满足基本渣土车的高度,控制在4m左右,当然也可以根据实际情况进行调整。
(8)开挖工况的模拟
开挖工况需结合实际情况进行模拟,切勿自动生成工况,这样很可能会遗失最不利工况。在工况空白处点击右键可以增加或者删除工况,注意施加换撑时的顺序,当浇筑结构底板或者中间隔板时,还应施加刚性角。

工程师必备
- 项目客服
- 培训客服
- 平台客服
TOP




















