锻造企业自动化升级改造的投资方向(上)


本文结合国内汽车行业的市场需求现状,针对国内大部分锻造企业的生产现状及需求,阐述了部分锻造企业的生产设备无法满足日益增长的生产需求的矛盾,说明了锻造企业进行自动化升级改造的必要性及原因,并通过分析改造成本与收益,为国内锻造企业指出了极为高效的投资方向与途径。

我国汽车市场需求量及锻造行业需求的分析

随着我国社会经济及制造工业的发展,人们生活水平不断提高,人们对于汽车的需求量逐年增加(图1),汽车零部件的生产加工在促进汽车工业发展中发挥着越来越重要的作用。汽车上约有58%的零部件采用锻压工艺,其中发动机零部件曲轴、连杆、车轮零件、传动部齿轮等零部件为汽车零件制造的重要构成部分,比起铸造、全机加等生产方式,通常选取模锻方式生产。其中热模锻压力机因广泛适用于各种精密模锻件的大批量生产条件,已成为发达国家模锻的主要生产设备,占比达40%~70%,以德国、美国为代表正将生产线推向智能化的技术层面,而我国热模锻设备数量占比不及20%。除此之外,我国锻造企业生产现状还存在诸多不足。
锻造企业自动化升级改造的投资方向(上)的图1
图1 2009-2019 全国汽车产量(单位:万辆)

我国锻造企业的现状及问题

由于我国锻造工业技术起步较晚,从现存大部分锻造企业的生产现状来看仍有很多不足,主要体现在以下几个方面:
⑴大型自由锻的设备能力过剩、布局分散、利用率低;
⑵模锻设备以模锻锤、螺旋压力机、液压机等老式设备为主,伺服热模锻压力机占比低;
⑶锻造设备的自动化程度低,生产效率较低;
⑷人工投入量大,工人技术经验不足、缺乏系统性培训;
⑸工人劳动强度大、劳动条件差;
⑹锻件加工余量大;
⑺各类高级专业人才匮乏;
⑻车间内基础设施不完善。
由于我国大部分锻造企业存在以上问题,很难满足日益发展的汽车产业生产需求,故锻造企业需要进行设备自动化升级及生产条件的改善,以满足不断增长的汽车制造业的需要。所以锻造设备自动化升级改造是有必要的。

自动化升级改造必要性

建立包括全工序生产环节和工艺的综合流水线是对锻造行业发展前景的展望,而自动化锻造又非常适合少品种、大批量的锻件生产,尤其适合汽车零件的锻造生产,例如轴承、齿轮、轮毂、法兰轴、气门等的生产,自动化锻造生产线及生产过程体现的优点总结如下:
⑴有效提高生产效率。自动化生产线替代人工手动进行大量、重复、危险性的生产动作,可以有效提高劳动生产率,自动化设备依据自动化程度的不同,价格通常为通用压力机的1.2 ~2 倍,但生产率可达到1.5 ~10 倍,详见表1。
结合表1,以连杆为例,手动生产时每分钟约为6 件,单个连杆产值按照150 元计算,自动化生产线一年对比手动操作多创造产值约为:一亿五千五百万元(1 班制),三亿一千一百万元(2 班制)。
表1 热模锻压力机自动化生产线典型锻件的生产能力
锻造企业自动化升级改造的投资方向(上)的图2
⑵降低人力成本。由于近些年来国内人口红利逐渐降低,人力成本持续走高,雇工难、人员流动性大,日益成为锻造企业待解决的难题,自动化生产线可以有效节约人力成本,具有短期内肉眼可见的经济效益,实现自动化生产后,每条线只需1 ~2 人值守,对比手动生产线生产通常需要5 人以上,大大节省人力投入。
⑶提高产品质量。自动化生产使锻件出产质量更稳定,锻件精度更高,毛坯精度可提高10%~ 12%,可锻出锻件质量±1%的公差,锻件温度误差可控制在±10℃。
⑷改善工作环境、提升员工健康。锻造车间生产环境通常较恶劣,高温、高湿、粉尘、噪声等环境问题明显,自动化生产可以有效避免员工长时间、近距离暴露在恶劣的生产环境中,减少员工作业强度,减少工伤事故的发生,提升员工健康。
⑸有利于逐步扩大生产规模,有效带动传统生产模式的改造与升级。
⑹国外发达国家趋近成熟的自动化发展现状可以为我国提供丰富的经验指导,使国内企业少走弯路。

锻造自动化升级改造投资侧重点

人才的吸纳和储备

自动化升级改造的首要任务是准确分析生产企业自身需求,综合长、短期目标,同时找出工艺短板,发现制约提升经济效益的重要因素,以期在自动化代替人工后的大批量生产中显著提升经济效益,这时就需要大量经验型和有快速学习能力的人才,人才不仅可以为企业提供各种前期需要的有效参考信息和合理意见,也可以在投入新硬件设备后,为企业提供更为详实的工程管理与实现细节,在自动化改造全流程中,提供较为多样的可行性分析和解决方案,确保整个自动化改造过程更顺利。
人才的投入途径大致分为两种:一种是直接引进具有丰富经验与扎实功底的技术型人才,同时储备学习能力强、有发展潜力的年轻型员工,以保障企业在自动化改造前期做好更充足的准备和改造更顺畅地进行,但直接引进人才,在时间上具有局限性这里不再赘述;另一种人才投入途径则为间接性投入,即通过与专业度高、技术水平先进的自动化改造供应商的合作,签订设备合同时附加需要对现场操作工,设备保全部的机械工和电工进行培训。此种投入在短期内便可获得生产水平上的极大收益。

设备和工艺的升级与改造

自动生产取代人工手动生产归根结底要靠自动化设备和配套工艺来完成,因此自动化改造投入的成本中极大比例为设备和工艺引进方面的支出。从投入比重来看,锻造企业自动化的实现途径有以下两种:一次性投入全新工艺的整线自动化锻压机设备;从单独设备(脱模剂自动喷淋装置)入手逐步进行生产线设备的自动化升级。
⑴锻造压力机自动化生产整线介绍(以热模锻为例)。
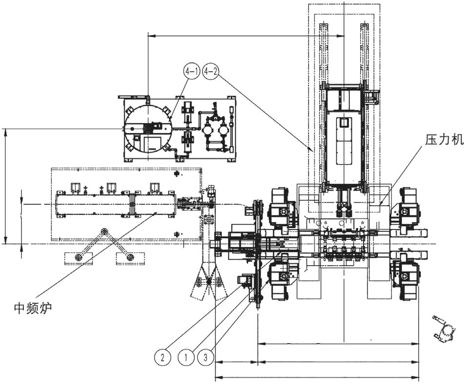
一般包括:中频感应加热炉、主机、自动上/下料装置、步进梁或机器人、模具模座、模具润滑回收等部分,表2 简要介绍了热模锻压力机自动化生产线的相关情况。锻造自动化生产线整体布局参照图2和图3。
表2 热模锻压力机自动化生产线简介
锻造企业自动化升级改造的投资方向(上)的图3

锻造企业自动化升级改造的投资方向(上)的图4
图4 步进梁连线工艺
锻造企业自动化升级改造的投资方向(上)的图5
图5 机器人连线工艺
锻造企业自动化升级改造的投资方向(上)的图6
图2 锻造自动化生产线布局图
1-坯料传送带 2-上料装置 3-步进梁 4-1-脱模剂搅拌罐 4-2-移动喷嘴
锻造企业自动化升级改造的投资方向(上)的图7
图3 锻造自动化生产线立体效果图
作者简历
锻造企业自动化升级改造的投资方向(上)的图8
朱碧雯 ,海外部部长,主要从事日本、韩国全自动锻造生产线的进口、销售及售后服务工作。
——来源:《锻造与冲压》2020年第21期 
《锻造企业自动化升级改造的投资方向》(下)  见《锻造与冲压》2020 年第23 期
登录后免费查看全文
立即登录
App下载
技术邻APP
工程师必备
  • 项目客服
  • 培训客服
  • 平台客服

TOP

1
1