看完沉默了!日本的土木工程师是怎样养成的!
2021年5月17日 13:23浏览:2719 收藏:1
正 文
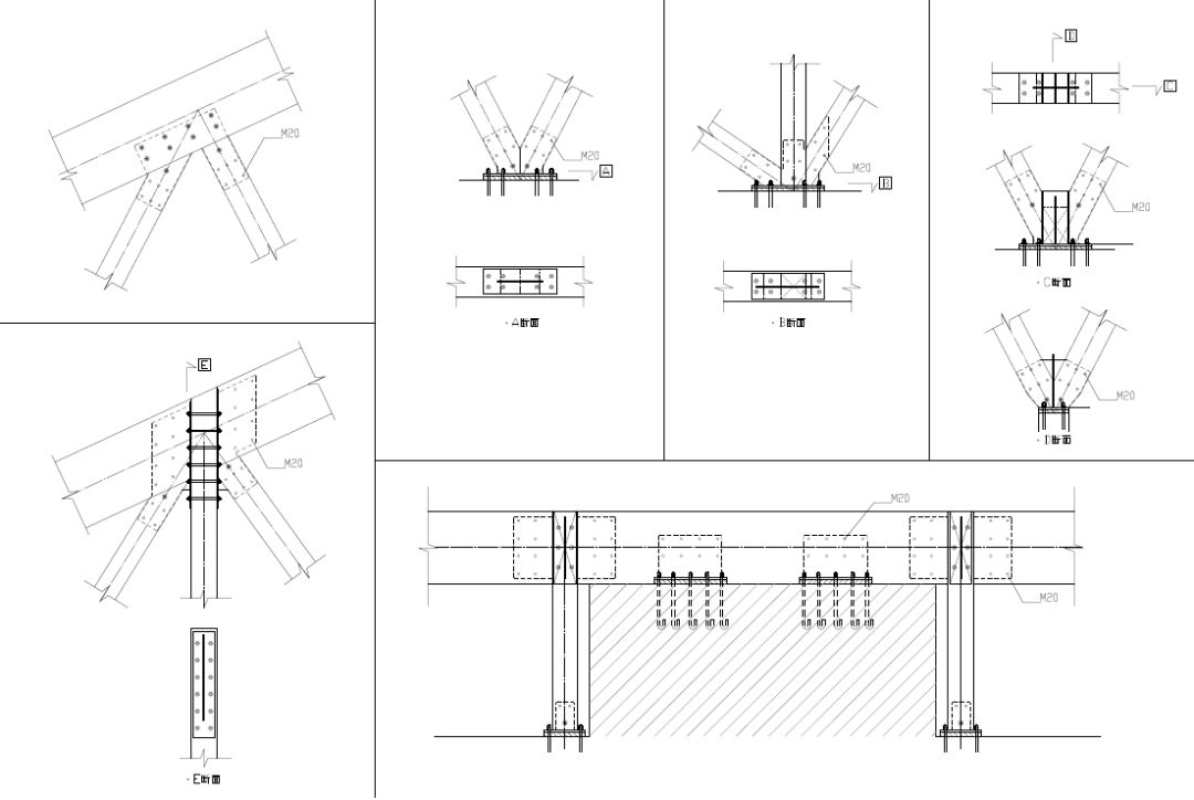
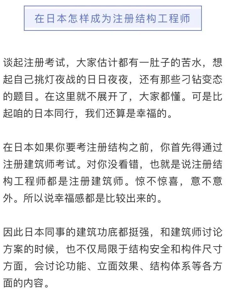
图片文字来自网络,版权归原作,如侵权联系删除。
完
& 为岩土工作者发声 &
传递你的:工作困惑、推荐文章、个人观点、经验总结;
爆料行业:突发事件、创新工艺、优秀案例、政策动态;
加入微信:岩土生态、福利活动、主题探讨、行业调研;
从添加乐哥微信(YTU-CN)开始
分享 点赞 在看 | 表达你的态度
技术邻APP
工程师必备
工程师必备
- 项目客服
- 培训客服
- 平台客服
TOP
1
1




















