西门子S7-200 SMART 综合应用案例及解析——家用普通洗衣机
2021年5月20日 13:54浏览:2230 收藏:1
二、控制要求
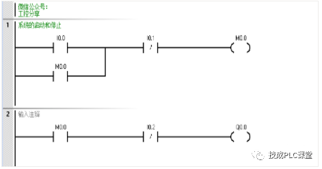
当按下启动按钮时,洗衣机启动运转;当按下停止按钮时,洗衣机停止运转。
三、元件说明
| PLC输入及辅助软元件 | 控制说明 |
| I0.0 | 洗衣机启动和初始化按钮,按下启动时,I0.0 状态由Off→On |
| I0.1 | 洗衣机停止按钮按下停止时,I0.1 状态由Off→On |
| I0.2 | 高水位传感器,当水位到达高水位时,I0.2状态由Off→On |
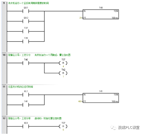
| T37 | 计时10s 定时器,时基为100ms的定时器 |
| T38 | 计时2s定时器,时基为100ms 的定时器 |
| T39 | 计时10s定时器,时基为100ms 的定时器 |
| T40 | 计时24s定时器,时基为100ms的定时器 |
| T41 | 计时48s定时器,时基为100ms的定时器 |
| T42 | 计时2s定时器,时基为100ms的定时器 |
| M0.0 | 内部辅助继电器 |
| PLC输出软元件 | 控制说明 |
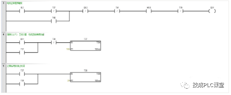
| Q0.0 | 电磁进水阀 |
| Q0.1 | 电动机正转接触器 |
| Q0.2 | 电动机反转接触器 |
四、控制程序
①按下启动按钮I0.0时,I0.0 得电,常开触点闭合,M0.0 得电自锁,洗衣机自动运行。此时,进水阀门Q0.0得电,洗衣机开始进水。
②当洗衣机内水位达到高水位后,I0.2 得电,常闭触点断开,Q0.0失电,进水阀门关闭; I0.2 常开触点闭合,Q0.1 得电,洗衣机电动机正转运行。由于Q0.1=On,则电动机运,行计时开始,经10s后,T37=On, Q0.1=Off,电动机停止正转运行,同时,间歇计时开始,2s后,T38=On,Q0.2=On。
电动机反转运行,同时反转计时开始,10s 后,T39=On,电动机停止反转运行。同时,间歇计时开始,2s后,T42=On,定时器T39失电。
T40=On, RST指令被执行,T37 ~ T39、T40, T42被复位,且Q0.1=On,洗衣机正转运行再次开始,并以此步骤循环运行。
③循环时间为用户自行设定的洗涤时间,梯形图中以T41中的时间表示本案例假设为48s。当洗衣机到达高水位后,开始计时,达到设定的时间后,T41=On, 电动机停转。
④I0.0 既为启动开关,也为初始化开关,按下后,复位操作指令被执行,T37~ T42被复位。
(来源:网络,版权归原作者所有,侵删)
技术邻APP
工程师必备
工程师必备
- 项目客服
- 培训客服
- 平台客服
TOP
1




















