乙烯裂解炉的分类及功能,你真的了解了吗?
2021年11月11日 13:18关键词 | 乙烯裂解炉 分类 原理
共 2915 字 | 建议阅读时间 15 分钟
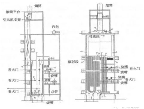
乙烯装置中的裂解炉由对流段、辐射段(包括辐射炉管和燃烧器)和急冷锅炉系统三部分构成。
裂解反应在辐射段炉管中发生生成乙烯和丙烯等产品。对流段回收高温烟气余热,以气化和过热原料至反应所需的横跨温度,同时预热锅炉给水和超高压蒸汽。急冷锅炉系统的作用是终止裂解二次反应并回收裂解气的高温热量以产生超高压蒸汽。
基本流程如下:
乙烯裂解炉的种类从技术上可分为双辐射室、单幅射室及毫秒炉。
从炉型上可分为CBL裂解炉(自主研发)、SRT型裂解炉、USC型裂解炉、KTI GK裂解炉、毫秒裂解炉、Pyrocrack型裂解炉。
CBL型裂解炉
CBL炉是我国在20世纪90年代,北京化工研究院、中国石化工程建设公司、兰州化工机械研究院等多家单位,相继开发的高选择性裂解炉。
CBL裂解炉的对流段设置在辐射室上部的一侧,对流段顶部设置烟道和引风机。对流段内设置原料、稀释蒸汽、锅炉给水预热、原料过热、稀释蒸汽过热、高压蒸汽过热段。稀释蒸汽的注入:二次注汽的为I、Ⅱ型,一次注汽的为Ⅲ型。
主要特点是将对流段中稀释蒸汽与烃类传统方式的一次混合改为二次混合新工艺。一次蒸汽与二次蒸汽比例应控制在适当范围内。采用二次混合新工艺后,物料进入辐射段的温度可提高50℃以上。
这样,当裂解深度不变时,裂解温度可降低5℃-6℃,辐射段烟气温度可相应降低20℃-25℃,最高管壁温度下降14℃-20℃,全炉供热量可降低约10%。
供热采用侧壁烧嘴与底部烧嘴联合布置方案,侧壁烧嘴为无焰烧嘴,底部烧嘴为油气联合烧嘴。
该炉具有裂解选择性高、调节灵活、运转周期长等特点。
SRT型裂解炉
SRT型裂解炉即短停留时间炉,是美国鲁姆斯(Lummus)公司于1963年开发,1965年工业化,以后又不断地改进了炉管的炉型及炉子的结构,先后推出了SRT-Ⅰ~Ⅵ型裂解炉。
该炉型的不断改进,是为了进一步缩短停留时间,改善裂解选择性,提高乙烯的收率,对不同的裂解原料有较大的灵活性。SRT 型炉是目前世界上大型乙烯装置中应用最多的炉型。
SRT型裂解炉的对流段设置在辐射室上部的一侧,对流段顶部设置烟道和引风机。对流段内设置进料、稀释蒸汽和锅炉给水的预热。
从SRT-Ⅵ型炉开始,对流段还设置高压蒸汽过热,由此取消了高压蒸汽过热炉。在对流段预热原料和稀释蒸汽过程中,一般采用一次注入蒸汽的方式,当裂解重质原料时,也采用二次注汽。
早期SRT型裂解炉多采用侧壁无焰烧嘴烧燃料气,为适应裂解炉烧油的需要,目前多采用侧壁烧嘴和底部烧嘴联合的布置方案。底部烧嘴最大供热量可占总热负荷的70%。SRT-Ⅲ型炉的热效率达93.5%。
折叠USC型裂解炉
斯通-伟伯斯特(S.W)公司的USC裂解炉(超选择性裂解炉)为单排双辐射立管式裂解炉,辐射盘管为W型或U型盘管。由于采用的炉管管径较小,因而单台裂解炉盘管组数较多(16-48组)。
每2组或4组辐射盘管配一台USX型(套管式)一级废热锅炉,多台USX废热锅炉出口裂解气再汇总送入一台二级废热锅炉。后期开始采用双程套管式废热锅炉(SLE),将两级废热锅炉合并为一级。
USC型裂解炉对流段设置在辐射室上部一侧,对流段顶部设置烟道和引风机。对流段内设有原料和稀释蒸汽预热、锅炉给水预热及高压蒸汽过热等热量回收段。大多数USC型裂解炉为一个对流段对应一个辐射室,也有两个辐射室共用一个对流段的情况。
当装置燃料全部为气体燃料时,USC型裂解炉多采用侧壁无焰烧嘴;如装置需要使用部分液体燃料时,则采用侧壁烧嘴和底部烧嘴联合布置的方案。底部烧嘴可烧气也可烧油,其供热量可占总热负荷的60%-70%。
由于USC型裂解炉辐射盘管为小管径短管长炉管,单管处理能力低,每台裂解炉盘管数较多。为保证对流段进料能均匀地分配到每根辐射盘管,在辐射盘管入口设置了文丘里喷管。
USC裂解技术是根据停留时间、裂解温度和烃分压条件的选择,使生成的产品中乙烷等副产品较少,乙烯收率较高而命名的。短的停留时间和低的烃分压使裂解反应具有良好的选择性。
折叠KTIGK裂解炉
早期的GK—I型裂解炉为双排立管式裂解炉,20世纪70年代开发的GK一Ⅱ型裂解炉为混排(入口段为双排,出口段为单排)分支变径管。
在此基础上,相继开发了GK一Ⅲ型、GK一Ⅳ型和GK—V型裂解炉。GK—V型裂解炉为双程分支变径管,由于管程减少,管长缩短,停留时间可控制在O.2秒以内。GK型裂解炉一般采用一级废热锅炉。
对流段设置在辐射室上侧。对流段除预热原料、稀释蒸汽、锅炉给水外,还进行高压蒸汽的过热。
GK型裂解炉采用侧壁烧嘴和底部烧嘴联合布置的方案。底部烧嘴可烧油也可烧气,其最大供热量可占总热负荷的70%。侧壁烧嘴为烧气的无焰烧嘴。
对不同的裂解原料采用不同的炉管构形,对原料的灵活性较大。新型辐射段炉管的停留时间短,热效率高。
折叠毫秒裂解炉
凯洛格公司的毫秒炉为立管式裂解炉,其辐射盘管为单程直管。对流段在辐射室上侧,原料和稀释蒸汽在对流段预热至横跨温度后,通过横跨管和猪尾管由裂解炉底部送入辐射管,物料由下向上流动,由辐射室顶部出辐射管而进入第一废热锅炉。
裂解轻烃时,常设三级废热锅炉;裂解馏分油时,只设两级废热锅炉。对流段还预热锅炉给水并过热高压蒸汽,热效率为93%。
毫秒炉采用底部大烧嘴,可烧气也可烧油。由于毫秒炉管径小,单台炉炉管数量大,为保证辐射管流量均匀,在辐射管入口设置猪尾管控制流量分配。
毫秒炉管径较小,所需炉管数量多,致使裂解炉结构复杂,投资相对较高。因裂解管是一程,没有弯头,阻力降小,烃分压低,因此乙烯收率比其它炉型高。
折叠Pyrocrack型
林德公司从20世纪60年代开发了Pyrocrack裂解炉,该型裂解炉通常为双辐射段、单对流段结构。为了适应不同的原料,Pyrocrack裂解炉采用了Pyrocrack4-2、Pyrocrack2-2和Pyrocrack1-1型3种不同的炉管结构。
其中Pyrocrack1-1型选择性高,停留时间也短,单组炉管处理能力最小但烯烃产量高。林德公司在90年代以后设计的裂解炉主要采用Pyrocrack1-1型炉管。
裂解系统作为乙烯装置的核心,大约占整个装置能耗的70-80%。裂解系统能耗的多少决定了装置的能耗水平。下面小七以中沙石化有限公司的乙烯装置为例,为大家讲解如何通过优化裂解炉操作的方法,达到节能降耗的目的。
一、裂解系统的优化操作
1、优化裂解炉的运行
降低裂解炉的裂解深度,强化裂解炉的优化操作管理,实时关注裂解原料变化,并进行分析及调整,实现最优产品分布。
2、优化裂解原料
严控原料品质,根据入厂原料日报分析,及时调整注硫量。轻、重石脑油分别送进不同的裂解炉,分储分炼投用。
3、优化工艺操作及现场管理
提高裂解炉的热效率:
a.裂解炉正常运行过程中,加强检查炉膛内火嘴燃烧状况是否良好,根据火嘴燃烧情况调整风门的开度。若是火嘴烧坏或堵塞,要及时更换和清理疏通,防止炉管因局部过热造成炉管结焦和保温变形。
b.控制烟气氧含量。
c.关注炉子密闭性,降低热量损失。日常操作中要检查观火孔、点火孔是否关闭或者损坏,一定要及时处理,减少冷空气漏入。
4、优化烧焦方案,缩短烧焦时间
裂解炉烧焦是完全地耗能工况。通过调整稀释蒸汽和空气的配比,及时分析烧焦气中CO,CO2含量,并在纯空气烧焦阶段切换侧壁火嘴,使炉子充分受热,这可有效减少烧焦时间。
另外,烧焦时间过长和过短都是不好的。烧焦时,炉子温度高,对流段温度比正常运行高,辐射段易出现超过炉管最高允许值的热点,若烧焦时间过长,必然会对炉管造成损害,缩短其使用寿命,增加维护费用。若烧焦时间短,烧焦不彻底,会造成下次清焦周期短,影响生产。
二、实施新型节能技术
1、在裂解炉底部燃烧器加入空气预热器,可以节约燃气用量,同时改善燃烧条件,减少烟气排放,进而提高裂解炉的热效率。
2、回收炼厂干气,增加装置效益。
3、焦炉罐改造
烧焦时易将焦粉从罐顶带出,污染环境,且烧焦冷却水用量大。通过对烧焦罐进行改造,使得焦粉的中小粒径颗粒分布增加,可有效改善焦粉溢出的问题。
4、乏气回收项目
以脱盐水为工作水源,经动力头抽吸的作用,将乏气冷凝成水,回收蒸汽。
5、费油回收改造
工程师必备
- 项目客服
- 培训客服
- 平台客服
TOP




















