施工现场临时用电配电箱(柜)标准化配置图集
2022年3月16日 10:44该系列配电箱(柜)适用于施工现场及户外临时用电,应满足“三级配电、 二级漏电保护、一机一闸、一漏一箱”配电及保护的使用要求。配电箱(柜)、开关箱的材质选用、制作工艺、箱内电气元件的选择、配置应符合国家相关标准,以及建设部“十一五”推广应用技术的规定,产品应通过CCC认证。配电箱(柜)的壳体采用冷轧钢板制作,防雨、防尘、户外型,采用钢板厚度符合JGJ-2005标准,经久耐用。
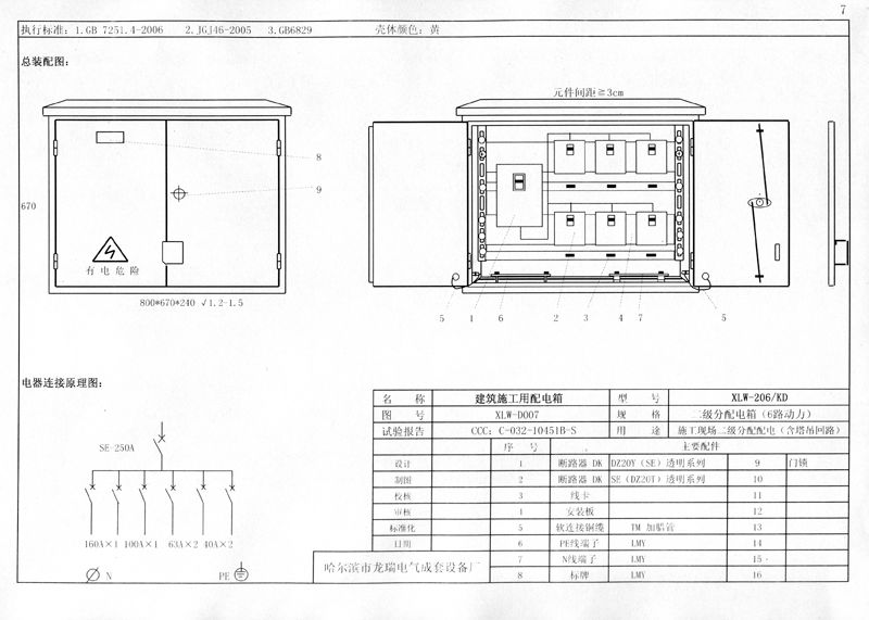
(一)配电箱(柜)的生产制造应符合《低压成套开关设备和控制设备》第四部分GB7251.4对建筑工地用成套设备(ACS)的特殊要求及《施工现场临时用电安全技术规范》JGJ46-2005的标准要求。
(二)配电箱(柜)、开关箱安装使用应符合《施工现场临时用电安全技术规范》JGJ46-2005标准及《用电安全导则》GB/T13869标准化要求。
(三)配电箱(柜)、开关箱应分设N线、PE线端子板,进出线必须通过端子板做可靠连接。N线端子板必须与金属电器安装板绝缘;PE线端子板必须与金属电器安装板做电气连接。进出线中的N线必须通过N线端子板连接;PE线必须通过PE线端子板连接。PE线与端子板连接必须采用电气连接,电气连接点的数量应比箱体内回路数量多2个,1个为PE线进箱体的连接点,1个为重复接地的连接点。
(四)电器元件应选用符合GB/14048.2-2001、GB6829以及JGJ46-2005标准的产品,并符合建设部“十一五”推广应用技术要求。
内设400A-630A具有隔离功能的DZ20型透明塑壳断路器作为主开关,分路设置4-8路采用具有隔离功能的DZ20系列160A-250A透明塑壳断路器,配置DZ20L(DZ15L)透明漏电开关或LBM-1系列作为漏电保护装置,使之具有欠压、过载、短路、漏电、断相保护功能,同时配备电度表、电压表、电流表、两组电流互盛器。漏电保护装置的额定漏电动作电流与额定漏电动作时间的乘积不大于30mA.S。最好选用额定漏电动作电流75-150mA,额定漏电动作时间大于0.1S小于等于0.2S,其动作时间为延时动作型。
总配电柜示意图
总配电柜端子板接点图
总配电柜柜门电气连接点图
四回路配电柜电气系统图
六回路配电柜电气系统图
八回路配电柜电气系统图
(一)含照明回路分配电箱 (动力回路与照明回路分路配电)
内设200A-250A具有隔离功能的DZ20系列透明塑壳断路器作为主开关(与总配电箱分路设置断路器相适应);采用DZ20或 KDM-1型透明塑壳断路器作为动力分路、照明分路控制开关;各配电回路采用DZ20或KDM-1透明塑壳断路器作为控制开关;PE线连线螺栓、N线接线螺栓根据实际需要配置。
分配电箱示意图
电气连接图
分配电箱电气系统图
含塔吊回路分配电箱示意图
(端子板接点及电气连接点图同上)
含塔吊回路分配电箱系统图
(二)不含照明回路分配电箱
6-8回路分配电箱示意图
6回路分配电箱含塔吊回路
(端子板接点及电气连接点图同上)
8回路分配电箱系统图
6回路含塔吊回路分配电箱系统图
(一)地泵等大型设备动力开关箱
内设KDM1或DZ20(160A以上 380V)系列透明塑壳断路器作为控制开关,配置DZ20L系列透明漏电断路器或LBM-1系列漏电断路器;PE线端子排为3个接线螺栓。
地泵等大型设备开关箱示意图
地泵等大型设备电气系统图
(二)塔式起重机等设备动力开关箱
内设,配置同上
塔式起重机等设备动力开关箱示意图
塔式起重机等动力设备开关箱系统图
(三)3.0KW以下用电设备开关箱
内设DZ20(20-40A、380V)或SE,KDMI系列透明塑壳断路器作为控制开关,配置DZ15LE(20-40A)或LBM1系列透明漏电断路器,PE线端子排为4个接线螺栓。
40A以下动力开关箱示意图
动力开关箱端子接点及电气接点连接图
40A以下设备用电开关箱电气系统图
(四)5.5KW以上用电设备开关箱
根据所控制设备额定容量选择控制开关及漏电断路器。控制开关为DZ20(SE或KDM1)系列透明塑壳断路器,漏电断路器为DZ15L系列透明系列漏电断路器;PE线接线螺栓为3个。
5.5KW以上设备开关箱示意图
5.5KW以上设备开关箱电气系统图
(五)照明开关箱
内设KDM1—T/2(20-40A)断路器,配置DZ15L—20-40/290漏电断路器,PE线螺栓为3个。
照明开关箱示意图
照明开关箱电气系统图
注:开关箱中漏电断路器必须选择额定漏电动作电流不大于30mA,额定漏电动作时间不大于0.1S,电流速断、电磁式电动机保用产品。
总配电箱中漏电断路器应选用配电保护用产品。
(一)配电柜正面的操作通道宽度,单列布置或双列背对背布置不小于1.5m,双列面对面布置不小于2m;
(二)配电柜后面的维护通道宽度,单列布置或双列面对面布置不小于0.8m,双列背对背布置不小于1.5m,个别地点有建筑物结构凸出的地方,则此点通道宽度可减少0.2m;
(三)配电柜侧面的维护通道宽度不小于1m;
(四)配电室的棚顶与地面的距离不低于3m。
(一)固定式配电箱、开关箱箱体中心点与地面垂直距离1.4--1.6m。移动式箱体与地面垂直距离0.8—1.6m。配电箱、开关箱应装设在坚固、稳定的支架上。
(二)配电箱、开关箱在建筑物坠落半径或塔吊臂旋转半径内的必须做双层防护棚,并采取隔离措施。
工程师必备
- 项目客服
- 培训客服
- 平台客服
TOP




















