
剥线须使用专用的剥线工具,不许出现绝缘层切口不齐、绝缘层损伤、绝缘剥离不彻底、导体切口或缺失、跑丝、导体散开、导体过度扭曲现象的发生。
(如果电线的导体是镀银的,剥线过程中又需要用手接触到电线的导体,必须戴手套操作)


剥线的时候,导体切口和缺失的铜丝数的总数量
必须符合
上表的要求,根据导体面积计算的导体许可的切口和缺失的铜丝数直接舍去小数点后面的数值取整。

5%*7=0.35,结果舍去小数点后的数值后为0,不许有导体的切口或缺失。
8%*32=2.56,结果舍去小数点后的数值后为2,最多许可有2根铜丝的导体切口或缺失。
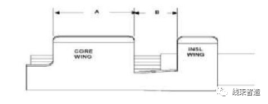
剥线长度应符合端子制造商图纸或说明书中规定的剥线长度,得不到端子制造商图纸或说明书的,作为替代的方案,对于开式压接端子的剥线长度取0.75+A+B/2(见下图).
为方便生产也可形成系列3.0;4.1;4.6;5.1;5.6;6.4;7.1;8.1;8.6;9.7;10.2。由公式算得剥头长度后取最接近的系列内的值作为剥线长度的要求。


导体末端在压接后要伸出导体压接区前平面,但最大为1mm,导体伸出的部分不允许影响端子工作区的插接功能、自锁功能或螺丝的固定功能。
对于孔式等电线接头类端子,导体末端不可进入螺丝固定圆形面区域。

电线的导体(1)和绝缘(2)应当在导体压接区(4)和绝缘压接区(5)之间的后连接区(3)内清晰可见。

尚可接受的状态
(尚可状态不可批量出现,发现尚可状态要及时的
更正解决
)


端子压接后,端子工作区不许出现损坏和变形,压接后端子工作区必须仍然符合端子图纸对工作区的尺寸和性能要求。

在压接区域,压接部位向左右方向形成的最大弯曲角度相对于中心轴线为±3°。
在压接区域,压接部位向上下方向形成的最大弯曲角度相对于中心轴线为±5°。


② 后喇叭口3是需要的,后喇叭口处的宽度不允许大于绝缘压接的宽度。后喇叭口尺寸要求遵照下表。
④ 对于阶梯压接的端子,在第二个阶梯处是不需要喇叭口的。

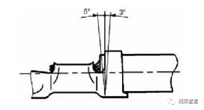
压接后,绝缘压接翼的前后倾斜角度必须控制在向前5°、向后3°的范围内。

对称压接:压接形状见图。要求至少有1/3(环绕120°)的绝缘层被绝缘压接翼包住。绝缘压接翼必须浸在绝缘皮内,绝缘压接翼可以刺破绝缘皮,但不可以伤到电线的导体。

圆形压接
:压接形状见图。电线的绝缘被绝缘压接翼至少应当在180°范围内仅仅包住;绝缘压接翼的开口小于等于45°是被认可的。

环形压接
:压接形状见图。电线的绝缘被绝缘压接翼至少应当在180°范围内紧紧包住;当端子压接最大截面电线时,两个绝缘压接翼的末端至少交替一个端子材料的厚度。

叠包压接
:压接形状见图。要求至少有2/3的电线的绝缘被端子的绝缘压接翼包裹。两个绝缘压接翼必须交替叠加在一起,绝缘压接翼可以刺破绝缘皮,但不可以伤到电线的导体。

对于后续端子在护套中有
自锁要求
的3种压接形式,绝缘压接要求依据端子制作商说明书的要求来设定。

双线压接
的例子见图。要求至少60%的绝缘被绝缘压接翼包裹;对于叠包压接,两个压接翼的末端最少应当是封闭的。
绝缘压接翼
可以刺破绝缘皮,但不可以伤到电线的导体;电线绝缘明显被固定,没有滑动或转动的风险;上下放置电线的时候,截面最小的电线放在最下边。

注:绝缘压接时,在端子绝缘压接翼与电线绝缘层的摩擦与挤压作用下,会形成
压力点
、飞边或绝缘切口。
压力点和飞边不足以造成电线绝缘层的机械性能的改变,是可以接受的,但那种透过绝缘层的可以看到电线导体的损伤的切口是
绝对不许可
的。
见图,绝缘损伤,透过切口可以看到电线的导体,
不可接受
。

对于绝缘压接必须做绝缘弯曲试验。要求
绝缘压接部位
经不少于3个循环的弯曲试验后,在下图所示的b区域内仍可看到电线的绝缘部分。

压接后,在图示的a区内,应可见密封栓和
电线绝缘层
的端部。
密封栓压接后的位置及相对端子的平直度应符合端子说明书中的要求。

圆形压接和环形压接是最常用的
两种压接形式
,绝缘压接翼应当尽可能的卷曲,包紧密封栓,保证端子在穿入护套的时候密封栓不脱落。
密封栓不要压接的过紧、
绝缘压接翼
也不可刺入密封栓内。

对于在端子的后连接区的下面
开有窗口
的端子。压接后,如图那样放置,防水栓必须在窗口内可见。
绝缘压接
时,在端子绝缘压接翼与密封栓的摩擦与挤压作用下,在密封栓上会形成压力点、飞边或很小的切口,压力点和飞边在端子的长期使用过程中不足以引起防水栓的脱落或开裂。
是可以接受的,但那种透过防水栓的可以看到
电线绝缘层
的损伤的切口是绝对不许可的。见下图,切口过大,透过密封栓可以看到电线的绝缘层,不可接受。

绝缘压接
的宽度和高度,必须满足对后续穿护套不造成影响,绝缘压接的公差在端子说明书中无特殊说明的情况下,要求遵照下表:

① 料边在压接后应当仍然可见,但长度不可以长于
端子材料
的厚度,并且最大不超过0.5mm。
② 料边切断处的毛刺,在端子说明书中
无特殊说明
的情况下,要求遵照下表。
③ 料边和料边毛刺不可以影响端子穿入护套或端子的对插功能。对于压接密封栓的端子,料边长度最大不超过0.3mm,料边禁止伸出,只许可指向端子
工作部分方向
的毛刺存在,料边和料边毛刺禁止划伤密封栓。
③ 拉力值参照标准中相同截面拉力值,如没有相同截面的电线,需要选择比所做拉力试验电线截面大的数值作为参照。
④ 做拉力测试的样品应当是在绝缘压接不压接的情况下测试。

选择截面小的一根进行拉力试验。拉力值参考截面小的拉力的
标准
。
① 比较多线压接端子两边电线的截面,选择最小的一根固定在拉力测试机的夹紧装置上(左边0.3mm²的线
首先固定
在拉力测试机上)。
② 在多线压接端子的另一边比较电线的
截面
,选择电线中截面最小的一根线作为被拉的一根固定在拉力测试机另一边的夹紧装置上(如上选择0.5mm²的线固定在另一边被拉)。
③ 拉力值应
参照
所有电线中,截面最小电线拉力的标准。

⑴需按下图所示的要求测试

⑵至少要将10根样线分类有序的连接在木质的测试台上。
⑷测试时间为200小时,通电45分钟然后断电15分钟。

2小时和200小时后分别测得的电压降值之间的差值必须小于0.3毫伏/安培
这是小电流工作环境下电阻稳定性的测试。其只针对不带密封圈的压接。

3. 潮湿温度交替变化的循环
10根样品线中每一根的最初和最后的电阻值差异必须小于0.3毫欧姆。