史上最全挡土墙设计解读!
2022年8月31日 09:25来源:网络
如有侵权,请联系删除
挡土墙是指支承路基填土或山坡土体、防止填土或土体变形失稳的构造物。
在挡土墙横断面中,与被支承土体直接接触的部位称为墙背;
与墙背相对的、临空的部位称为墙面;
与地基直接接触的部位称为基底;
与基底相对的、墙的顶面称为墙顶;
基底的前端称为墙趾;
基底的后端称为墙踵。
路基在遇到下列情况时可考虑修建挡土墙
1. 陡坡地段;
2. 为避免大量挖方及降低边坡高度的路堑地段;
3. 可能产生塌方、滑坡的不良地质地段;
4. 高填方地段;
5. 水流冲刷严重或长期受水浸泡的沿河路基地段;
6. 为节约用地、减少拆迁或者少占用农田的地段;
7. 为保护重要建筑物、生态环境或其他特殊需要的地段。
👇👇👇点击下方图片查看详情
路堑挡土墙:
设置在路堑边坡底部,主要用于支撑开挖后不能自行稳定的山坡,同时可减少挖方数量,降低挖方边坡的高度。
路肩挡土墙:
设置在路肩部位,墙顶是路肩的组成部分,其用途与路堤墙相同。它还可以保护临近路线的既有的重要建筑物(点我免费领取10个工程资料)。
路堤挡土墙:
设置在高填土路提或陡坡路堤的下方,可以防止路堤边坡或路堤沿基底滑动,同时可以收缩路堤坡脚,减少填方数量,减少拆迁和占地面积。
山坡挡土墙:
设置在路堑或路堤上方,用于支撑山坡上可能坍滑的覆盖层、破碎岩层或山体滑坡。
浸水挡土墙:
沿河路堤,在傍水的一侧设置挡土墙,可以防止水流对路基的冲刷和侵蚀,也是减少压缩河床的有效措施。
重力式挡土墙:
是以挡土墙自身重力来维持挡土墙在土压力作用下的稳定。它是我国目前常用的一种挡土墙。
常见的重力式挡土墙高度一般在5~6 m以下,大多采用结构简单的梯形截面形式,对于超高重力式挡土墙(一般指6m以上的挡墙)即有半重力式、衡重力式等多种形式。
重力式挡土墙可根据其墙背的坡度分为以下几种类型(如下图):
重力式挡土墙和悬臂式挡土墙的示意图(如下图):
薄壁式挡土墙:
包括悬臂式挡土墙和扶壁式挡土墙两种;一般墙高6m以内采用悬臂式,6m以上采用扶壁式。
◆ 悬臂式挡土墙:
是由立板(墙面板)和底板(墙趾板和墙踵板)两部分组成,一般形式为如下图所示:
◆ 扶壁式挡土墙:
当挡土墙的墙高h>10m时,为了增加悬臂的抗弯刚度,沿墙长纵向每隔0.8~1.0m,设置一道扶壁。
锚定式挡土墙:
包括锚杆式和锚定板式两种
◆ 锚杆式挡土墙:
是由预制的钢筋混凝土立柱、挡土板构成墙面,与水平或倾斜的钢锚杆联合组成。锚杆的一端与立柱连接,另一端被锚固在山坡深处的稳定岩层或土层中。
◆ 定板式挡土墙:
是由钢筋混凝土墙面、钢拉杆、锚走板以及其间的填土共同形成的一种组合挡土结构。
加筋土挡土墙:
是在土中加入拉筋,利用拉筋与土之间的摩擦作用,改善土体的变形条件和提高土体的工程特性,从而达到稳定土体的目的。由面板、拉筋组成,依靠填土、拉筋之间的摩擦力使填土与拉筋结合成一个整体。
★ 各挡土墙的适用条件:
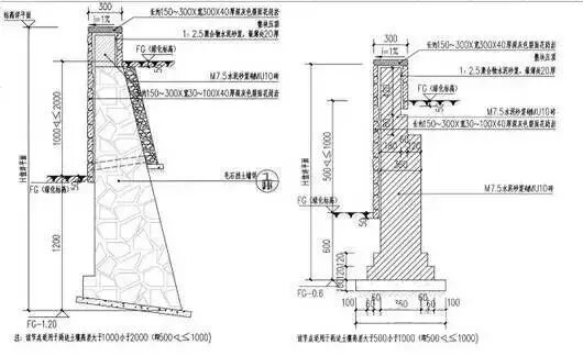
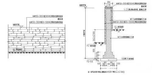
石砌挡土墙:
混凝土挡土墙:
钢筋混凝土挡土墙:
1. 墙背
仰斜墙背适用于路堑墙及墙趾处地面平坦的路肩墙或者是路堤墙,仰斜墙背的坡度不宜缓于1:0.3,通常在1:0.15~1:0.25。
俯斜墙背适用于路堤墙、路肩墙,常用1:0.15~1:0.25,不超过4m的低墙可以用垂直墙背(点我免费领取10个工程资料)。
凸形折线墙背多用于路堑墙,也可以用于路肩墙,上下墙的墙高比一般采用2:3
衡重式墙适用于山区地形陡峻处的路肩墙和路堤墙,也可用于路堑墙,上墙俯斜墙背的坡度1:0.25~1:0.45,下墙仰斜墙背在1:0.25左右,上下墙的墙高比一般采用2:3。
2. 墙面
墙面一般均为平面,起坡度应与墙背坡度相协调,墙面坡度直接影响挡土墙的高度,因此,在地面横坡较陡时,墙面的坡度一般为1:0.05~1:0.20,矮墙可采用陡直墙面;地面较平缓时,一般采用1:0.20~1:0.35较为经济。
3. 墙顶
墙顶宽度最小,浆砌挡土墙不小于50cm,干砌不小于60cm。浆砌路肩墙墙顶一般宜采用粗石料或者混凝土做成顶帽,厚度为40cm,如不做顶帽,对路肩墙和路堑墙,墙顶应以大石块砌筑,并用砂浆勾缝,或用5号砂浆抹平顶面,砂浆厚2cm。干砌挡土墙墙顶50cm高度内,应用25号砂浆砌筑,以增加墙身稳定,干砌挡土墙的高度一般不宜大于6m。
4. 栏杆
为保证交通安全,在地形险峻地段或者过高过长的路肩墙的墙顶应设置护栏,为保持土路肩最小宽度,护栏内侧边缘距路面边缘的距离,二、三级路面不小于0.75m,四级路不小于0.5m。护栏分墙式和柱式两种,所采用的材料,护拦高度、宽度,视实际需要而定。
1、基础类型
大多数挡土墙都直接修筑在天然地基上。
-
当地基承重力不足且墙趾处地形比较平坦,而墙身又超过一定高度时,为了减小基底压应力和增加抗倾覆稳定性,常常采用扩大基础。 -
当地基压应力超过地基承载力过多时,需要加宽值较大,为避免加宽部分的台阶过高,可采用钢筋混凝土底板。 -
地基为软弱土层时,可采用砂砾、碎石、矿渣或者灰土等材料予以换填。 -
当挡土墙修筑在陡坡上,而地基又为完整、稳固、对基础不产生侧压力的坚硬岸石时,可设置台阶基础,以减少基坑开挖和节省圬工。 -
如地基有短段缺口(如深沟等)或挖基困难(如需水下施工)可采用拱形基础。 -
2. 基础埋置深度
◆ 对于土质地基,基础埋置深度应符合下列要求:
(1) 无冲刷时,应在天然地面以下至少1m;
(2) 有冲刷时,应在冲刷线以下至少1m;
(3) 受冻胀影响时,应在冻结线以下不少于0.25m,当冻深超过1m,采用1.25m,但地基应夯填一定厚度的砂石或者碎石垫层,垫层底面亦应位于冻结线以下不少于0.25m
碎石、砾石和砂类地基,不考虑冻胀影响,但地基埋深不宜小于1m。
对于基石地基应清除表面风化层,将基底嵌入岩层一定深度,当风化层较厚难以全部清除表面时,可依据地基的风化程度及容许承载力将基底埋入风化层中。
当挡土墙位于地质不良地段,地基土内可能出现滑动面时,应进行地基抗滑稳定性验算,将基础底面埋置在滑动面以下,或采用其他措施以防止挡土墙滑动。
基础应采用明挖基础,当基底位于大于5%的纵向斜坡上,基底应该设置成台阶形。
挡土墙的排水措施通常由地面排水和墙身排水连部分组成。
地面排水主要是防止地表水渗入墙后土体或者地基,地面排水有以下几种方法:
1. 设置地面排水沟,截引地表水。
2. 夯实回填土顶面和地表松土,防止雨水和地面水下渗,必要时可设铺砌层。
3. 路堑挡土墙趾前的边沟应予以铺砌加固,以防边沟水渗入基础。
墙身排水:
浆砌块(片)石墙身应在墙前地面以上设一排泄水管(图a);墙高时可在墙上部加设一排泄水孔(图b),泄水孔尺寸可视泄水量大小分别采用5cm×10cm、10cm×10cm、15cm ×20cm的方孔,或直径5~10cm的圆孔。孔眼间距一般为2~3m;对于浸水挡土墙孔眼间距一般1.0~1.5m,干旱地区可适当加大,孔眼上下错开布置,下排水孔的出口应高出墙前地面或墙前水位0.3m。
为防止水分渗入地基,下排泄水孔进入的底部应铺设30cm后的粘土隔水层,泄水孔的进水口部分应设置粗粒料反滤层,以免孔道阻塞,当墙背填土透水性不良或可能发生冻胀事,应在最低一排泄水孔至墙顶以下0.5m的范围内铺设厚度不小于0.3m的砂卵石。
设计时,一般将沉降缝和伸缩缝合并设置,沿路线方向每隔10~15m设置一道,兼起两者的作用,缝宽2~3cm,缝内一般可用胶泥填塞,但在渗水量大、填料容易流失或冻害严重地区,则宜用沥青麻筋或涂以沥青的木板等具有弹性的材料,沿内、外、顶三方填塞,填深不宜小于0.15m,当墙后为岩石路堑或填石路堤时,可设置空缝。
干砌挡土墙缝的两侧应选用平整石料砌筑使成垂直通缝。
地形的塑造过程中,势必会遇到高差问题。放坡、台阶、挡土墙都是常用消化场地高差的方式。实际处理过程中,需要综合充分考虑场地的地基条件、景观风格、高差大小以及与周边环境协同性等多种因素,进而选择合适高差处理方式。
工程师必备
- 项目客服
- 培训客服
- 平台客服
TOP




















